
















Gewerbecenter Prinz Eugen
Ihr Geschäftsstandort in hochfrequentierter Lage
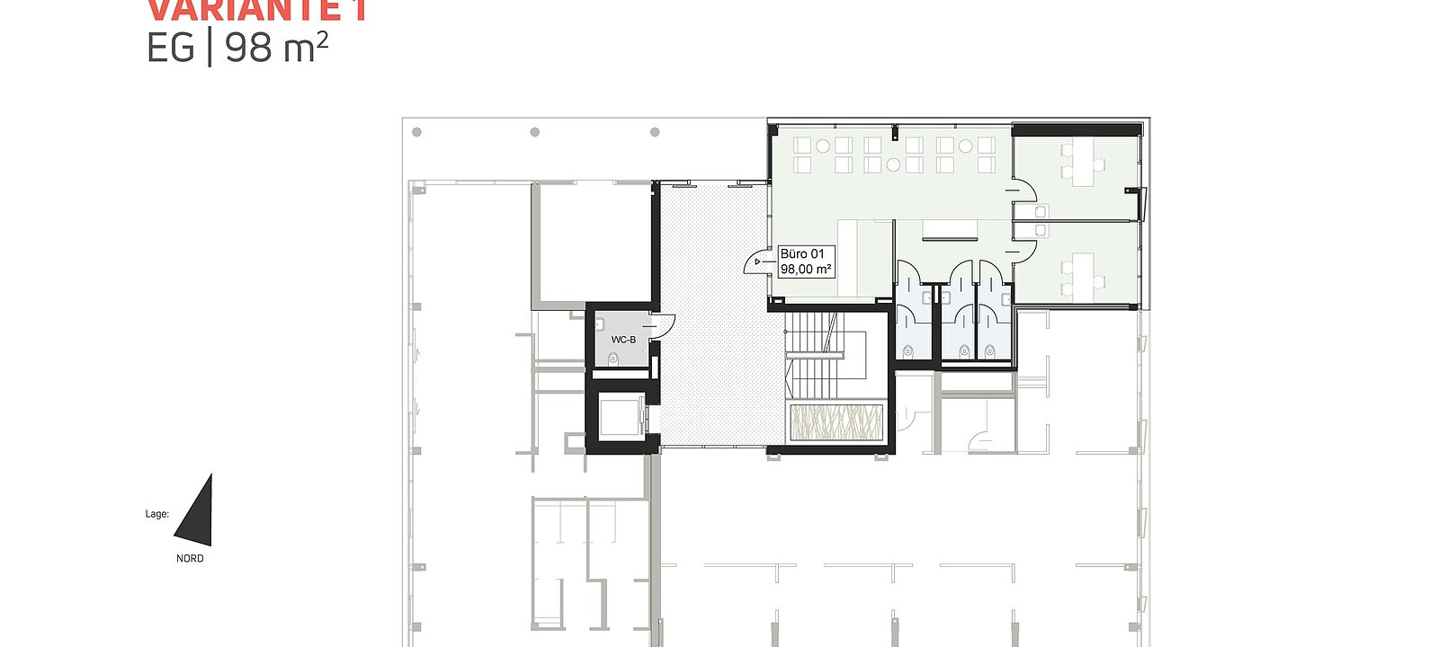
Mitten in der aufstrebenden, östlichen Innenstadt, an der Prinz-Eugen-Straße 10, entsteht ein neues, innovatives Gewerbeobjekt, das moderne und vielseitig nutzbare Büro-, Geschäfts- und Praxisflächen auf insgesamt rund 1.500 m² bietet.
Das aktuell im Bau befindliche Gebäude, bietet Ihrem Unternehmen attraktive Flächen in bester Lage: zwischen Design Center und FH Linz!
Hier haben Sie den Vorteil einer flexiblen Flächengestaltung, einer hohen Laufkundschaft und optimaler Sichtbarkeit an einer hoch frequentierten Straße.
Ideal für Cafés, Gastro, Geschäfte bzw. als Büro oder Praxis!
Es können unterschiedlichste Größen und Ausführungen für Ihre zukünftigen Büro- oder Praxisräume geplant werden.
Die Flächen können je nach Bedarf flexibel angemietet werden:
ab ca. 34 m²
ca. 181 m²
ca. 288 m²
ca. 425 m²
ca. 850 m²
bis hin zu ca. 1.500 m²
Dank der ausgezeichneten Verkehrsanbindung bietet der Standort eine perfekte Erreichbarkeit.
In unmittelbarer Nähe, sozusagen direkt vor der Haustüre, befinden sich mehrere Bushaltestellen, und auch die Autobahn A7 ist nur wenige Fahrtminuten entfernt. Durch die hohe Zahl an angrenzenden Wohngebäuden wird zudem eine hohe Kundenfrequenz gewährleistet.
Der monatliche Hauptmietzins wird ca. € 14,16/m² zzgl. 20% Ust. betragen.
Die monatlichen Betriebskosten - Akonto belaufen sich auf ca. € 2,24/m² zzgl. 20% Ust.
Selbstverständlich verfügt das Gebäude über eine hauseigene Tiefgarage, in der 24 Stellplätze je nach Bedarf angemietet werden können. Dies sorgt für zusätzlichen Komfort und Flexibilität für sowohl Mitarbeiter als auch Kunden.
Die Nettomiete pro Abstellplatz beträgt ca. € 71,- zzgl. 20% Ust. und die Betriebskosten belaufen sich auf ca. € 13,07 zzgl. 20% Ust.
Es wird darauf hingewiesen, dass die Hauptkomponente der Vorschreibung, nämlich die Finanzierung der Baukosten (€ 14,50 inkl. 20% USt) auf die gesamte Laufzeit keiner Indexierung (Erhöhung) unterliegt!
Finanzierungsbeitrag 2% der Baukosten: € 75,- Abschreibung mit 1% per anno
(€ 75,- sind der Finanzierungsbeitrag pro m² Nutzfläche)
Heizkosten werden dirkt mit der Linz AG abgerechnet.
Die Fertigstellung des Projekts ist für das 1. bzw. 2. Quartal 2026 geplant. Dieses moderne Neubauvorhaben in zentraler Lage bietet Unternehmen einen erstklassigen Standort mit hervorragender Infrastruktur und flexiblen Nutzungsmöglichkeiten.
Preise und Provision auf Anfrage.
Die folgenden Grundstücksinformationen werden über eine Koordinatenabfrage über das Digitale Oberösterreichisches Raum-Informations-System [DORIS] durchgeführt. Sollten vom User falsche Geokoordinaten bei der Inserats Erstellung oder via Makler-Software-Schnittstellen übermittelt worden sein, kann das Ergebnis von der tatsächlich angebotenen Immobilie divergieren.


Als Standortagentur des Landes trägt Business Upper Austria maßgeblich zur Stärkung und Weiterentwicklung des Wirtschaftsstandorts Oberösterreich bei.
Business Upper Austria ist die erste Adresse für alle, die am Standort Oberösterreich investieren wollen. Die oberösterreichische Standortagentur entwickelt Betriebsgebiete, unterstützt bei der Standort- und Mitarbeitersuche und berät Unternehmen zu nationalen und internationalen Förderungen. Weitere Informationen zu den Leistungen von Business Upper Austria im Bereich Investorenservice finden Sie hier.
Oberösterreich ist ein attraktiver Standort für innovative Unternehmen. Business Upper Austria fördert die Innovationskraft und Innovationsstrategien mit einer breiten Palette an maßgeschneiderten Dienstleistungen. Weitere Informationen zu den Leistungen von Business Upper Austria im Bereich Innovationsförderung finden Sie hier.
Business Upper Austria knüpft das Netzwerk, das Sie für Ihren wirtschaftlichen Erfolg brauchen. Die oberösterreichische Standortagentur unterstützt Sie bei der Suche nach nationalen und internationalen Kooperationspartnern aus Wirtschaft und Forschung. Weitere Informationen zu den Leistungen von Business Upper Austria im Bereich Vernetzung finden Sie hier.
Unsere Leistungen für Ihren Erfolg
Die Wirtschaftskammer Oberösterreich bietet professionelle Informations- und Beratungsleistungen zur Unterstützung von Wachstum und Sicherheit der Betriebe an.
Mit juristischen Fakten aus dem Vertragsrecht, Vergabe- und Wettbewerbsrecht, Datenschutz sowie Infos zu E-Commerce, Gesellschafts- und Insolvenzrecht, Miete und Pacht, etc.
Auf dieser Seite finden Sie eine Übersicht zum Serviceangebot zum Thema Gründung und Übergabe. Das Gründerservice der Wirtschaftskammern bietet Unternehmensgründern, Betriebsnachfolgern und Franchise-Nehmern professionelle Unterstützung beim Start ins Unternehmertum.
Ihr Kontakt zu den branchenübergreifenden und überregionalen Arbeitsgemeinschaften und Plattformen der WKO, wie z.B. Junge Wirtschaft, Frau in der Wirtschaft, Ein-Personen-Unternehmen, Enterprise Europe Network, etc.
Infos zu den Themen Betriebsanlagen-Genehmigung, Betriebsanlagen-Coaching/-Rechtsvertretung, Arbeitnehmerschutz, Umwelt, Normen.
Jetzt alles unternehmen!
Teilen