













Die Projektliegenschaft befindet sich in Linz Süd, im Betriebsgebiet um den Franzosenhausweg mit perfekter Anbindung an das Linzer Stadtgebiet über A7 und an die Westautobahn A1 und umfasst 11167 m2. Das 2800 m2 große Nachbargrundstück wäre auch käuflich und hat auch MB Widmung.
Es liegen Planungen für ein Projekt mit folgenden Parametern vor: Diese Planung könnte kostenfrei übernommen werden aber es ist natürlich kein Muss.
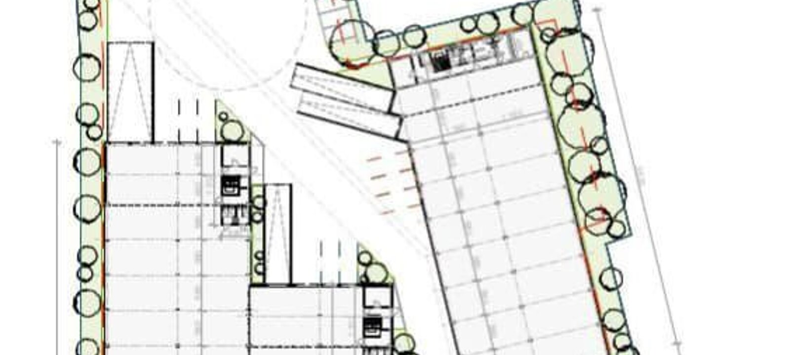
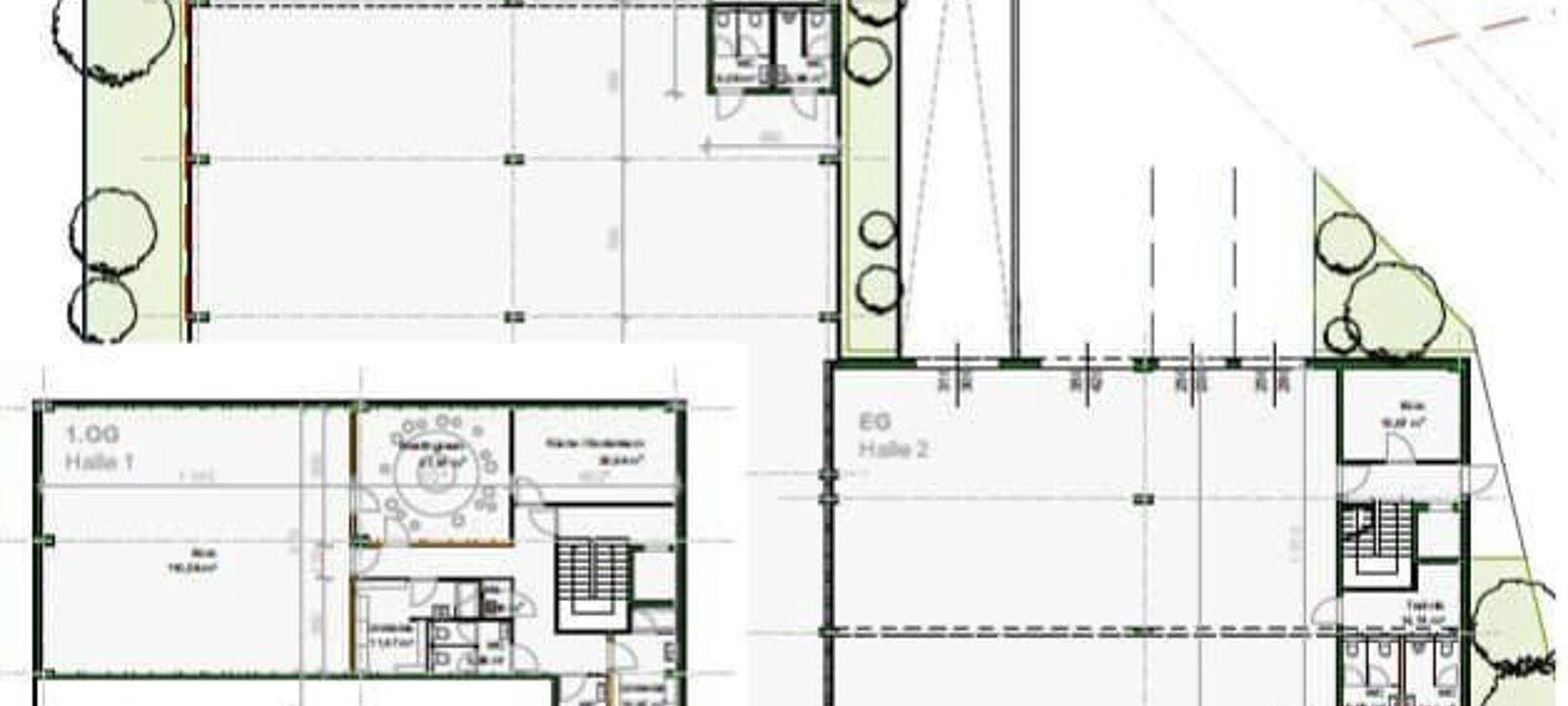
Bauteil 1:
Light Industrial / Logistics: 2.151 m²
Office: 65 m² EG, 260 m² 1.OG - ges. 325 m²
Bauteil 2:
Light Industrial / Logistics: 1.140 m²
Office: 65 m² EG, 258m2 1.OG - ges. 323 m²
Bauteil 3:
Light Industrial / Logistics: 1.802 m²
Office: 121 m² EG, 232 - ges. 353 m²
Widmung: Gemischtes Baugebiet MB1 - für betriebliche Nutzung geeignet
Das Projekt kann in vorentwickeltem Zustand von einem Projektentwickler oder Eigennutzer erworben werden.
DAS GRUNDSTÜCK KANN ABER AUCH OHNE PLANUNG GEKAUFT WERDEN
Man könnte das Grundstück auf mieten
LEGEN SIE IHR ANGEBOT


Als Standortagentur des Landes trägt Business Upper Austria maßgeblich zur Stärkung und Weiterentwicklung des Wirtschaftsstandorts Oberösterreich bei.
Business Upper Austria ist die erste Adresse für alle, die am Standort Oberösterreich investieren wollen. Die oberösterreichische Standortagentur entwickelt Betriebsgebiete, unterstützt bei der Standort- und Mitarbeitersuche und berät Unternehmen zu nationalen und internationalen Förderungen. Weitere Informationen zu den Leistungen von Business Upper Austria im Bereich Investorenservice finden Sie hier.
Oberösterreich ist ein attraktiver Standort für innovative Unternehmen. Business Upper Austria fördert die Innovationskraft und Innovationsstrategien mit einer breiten Palette an maßgeschneiderten Dienstleistungen. Weitere Informationen zu den Leistungen von Business Upper Austria im Bereich Innovationsförderung finden Sie hier.
Business Upper Austria knüpft das Netzwerk, das Sie für Ihren wirtschaftlichen Erfolg brauchen. Die oberösterreichische Standortagentur unterstützt Sie bei der Suche nach nationalen und internationalen Kooperationspartnern aus Wirtschaft und Forschung. Weitere Informationen zu den Leistungen von Business Upper Austria im Bereich Vernetzung finden Sie hier.
Unsere Leistungen für Ihren Erfolg
Die Wirtschaftskammer Oberösterreich bietet professionelle Informations- und Beratungsleistungen zur Unterstützung von Wachstum und Sicherheit der Betriebe an.
Mit juristischen Fakten aus dem Vertragsrecht, Vergabe- und Wettbewerbsrecht, Datenschutz sowie Infos zu E-Commerce, Gesellschafts- und Insolvenzrecht, Miete und Pacht, etc.
Auf dieser Seite finden Sie eine Übersicht zum Serviceangebot zum Thema Gründung und Übergabe. Das Gründerservice der Wirtschaftskammern bietet Unternehmensgründern, Betriebsnachfolgern und Franchise-Nehmern professionelle Unterstützung beim Start ins Unternehmertum.
Ihr Kontakt zu den branchenübergreifenden und überregionalen Arbeitsgemeinschaften und Plattformen der WKO, wie z.B. Junge Wirtschaft, Frau in der Wirtschaft, Ein-Personen-Unternehmen, Enterprise Europe Network, etc.
Infos zu den Themen Betriebsanlagen-Genehmigung, Betriebsanlagen-Coaching/-Rechtsvertretung, Arbeitnehmerschutz, Umwelt, Normen.
Jetzt alles unternehmen!
Teilen