









OFFICE - KLIMA - BALKON - PARKPLÄTZE
QUICKFACTS
Nutzfläche gesamt: ca. 370 m²
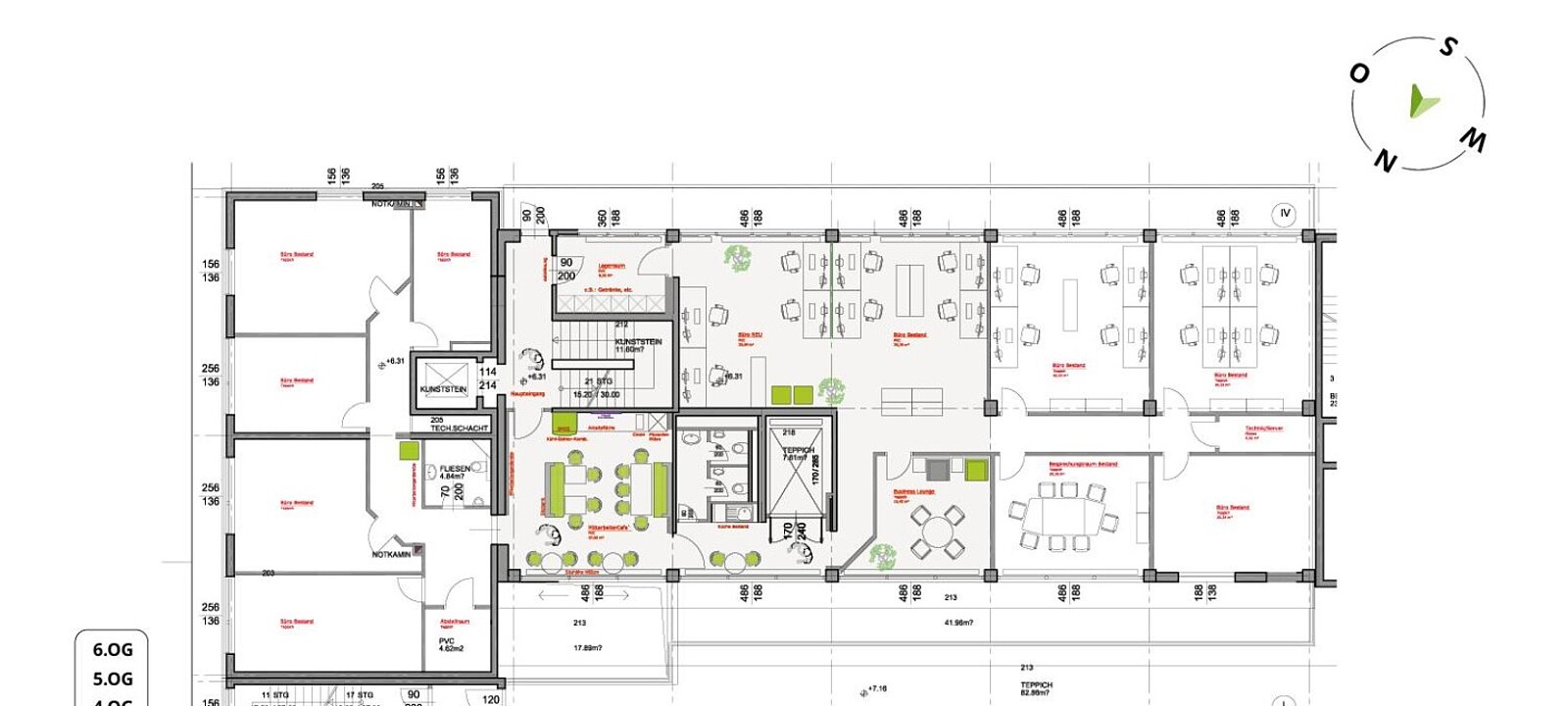
Raumaufteilung: siehe Planskizze
Stockwerk: 2.OG mit Lift
WC Anlagen: 2 getrennt
Nettomiete / m²: € 10,00
Bezugstermin: ab sofort nach Vereinbarung
OBJEKTBESCHREIBUNG
Zum sofortigen Bezug lädt diese ca. 370 m² große Bürofläche im 2. OG am Winterhafen 13. Ausgestattet mit Klimaanlage erstrecken sich auf einer Ebene 10 Büroräume verschiedener Größe, ein offener Empfangsbereich, Teeküche und Serverraum. Selbstverständlich sind getrennte Sanitäranlagen vorhanden. Für kurze Pausen lädt die vorgelagerte Allgemeinterrasse ein. Weiters besteht die Möglichkeit im Erdgeschoss des Hauses eine großzügige Geschäftsfläche mit Lagermöglichkeiten zusätzlich anzumieten.
LAGE & VERKEHRSANBINDUNG
Dieses Büroobjekt liegt perfekt angeschlossen an die A7 an der Ausfahrt "Hafenstraße" mit raschen Verbindungen in alle Richtungen. Regelmäßige öffentliche Busverbindungen sowie Radwege runden die Erreichbarkeit perfekt ab. Hervorzuheben ist das im Gebäude befindliche Hotel "Donauwelle" mit perfektem Service für Seminare, Meetings oder auch Unterkünften für Ihre Geschäftspartner. Selbstverständlich sind Parkplätze am Objekt zusätzlich anmietbar.
AUSSTATTUNG
Zustand: sehr gut
Boden: Parkett, PVC
Fenster: öffenbar
Sonnenschutz: außen
Decke: abgehängt
Beleuchtung: vorhanden
Datenverkabelung: vorhanden
Heizung: Fernwärme
Klima: vorhanden
Teeküche: vorhanden
Lift: Personenlift
Parkplätze: Freistellplätze anmietbar
KONDITIONEN (NETTO)
Miete: € 10,00 / m² / Monat
Gesamtmiete: € 3.700,00 / Monat
Betriebskosten: € 1,96 / m² / Monat
Gesamtbetriebskosten: € 727,79 / Monat
Heizkosten: € 0,63 / m² / Monat
Gesamtheizkosten: € 234,42 / Monat
Strom: nach Verbrauch
Befristung: ab 5 Jahre
Kaution: 3 BMM
Provision: 3 BMM
Zögern Sie nicht uns bei etwaigen Rückfragen oder zur Vereinbarung eines unverbindlichen Besichtigungs- bzw. Beratungstermines zu kontaktieren. Unser Team steht Ihnen gerne zur Verfügung! Ihr Ansprechpartner: Herr Claudio Feistritzer (0664 / 12 88 000 bzw. 0732 / 77 0 88 5-22)
PS: Zahlreiche weitere Immobilien finden Sie auf unserer Homepage unter www.projektas.at
Hinweis: Wir verarbeiten personenbezogene Daten zu geschäftlichen Zwecken. Nähere Informationen finden Sie unter www.projektas.at
| Angaben gemäß gesetzlichem Erfordernis: | |||
| Miete | € | 3700 | zzgl 20% USt. |
| Betriebskosten | € | 727,79 | zzgl 20% USt. |
| Heizkosten | € | 234,42 | zzgl 20% USt. |
| Warmwasser | € | 5,01 | zzgl 20% USt. |
| Umsatzsteuer | € | 933,44 | |
| ------------------------------------------------------------------ | |||
| Gesamtbetrag | € | 5319,36 | |
| ------------------------------------------------------------------ | |||
| Heizwärmebedarf: | 45.79 kWh/(m²a) | ||
| Klasse Heizwärmebedarf: | B | ||
Die folgenden Grundstücksinformationen werden über eine Koordinatenabfrage über das Digitale Oberösterreichisches Raum-Informations-System [DORIS] durchgeführt. Sollten vom User falsche Geokoordinaten bei der Inserats Erstellung oder via Makler-Software-Schnittstellen übermittelt worden sein, kann das Ergebnis von der tatsächlich angebotenen Immobilie divergieren.
| Flächenwidmung DORIS | externer Link | Öffnen |
| Google Maps | externer Link | Öffnen |
| documents_1740530159-4781.pdf | Download |


Als Standortagentur des Landes trägt Business Upper Austria maßgeblich zur Stärkung und Weiterentwicklung des Wirtschaftsstandorts Oberösterreich bei.
Business Upper Austria ist die erste Adresse für alle, die am Standort Oberösterreich investieren wollen. Die oberösterreichische Standortagentur entwickelt Betriebsgebiete, unterstützt bei der Standort- und Mitarbeitersuche und berät Unternehmen zu nationalen und internationalen Förderungen. Weitere Informationen zu den Leistungen von Business Upper Austria im Bereich Investorenservice finden Sie hier.
Oberösterreich ist ein attraktiver Standort für innovative Unternehmen. Business Upper Austria fördert die Innovationskraft und Innovationsstrategien mit einer breiten Palette an maßgeschneiderten Dienstleistungen. Weitere Informationen zu den Leistungen von Business Upper Austria im Bereich Innovationsförderung finden Sie hier.
Business Upper Austria knüpft das Netzwerk, das Sie für Ihren wirtschaftlichen Erfolg brauchen. Die oberösterreichische Standortagentur unterstützt Sie bei der Suche nach nationalen und internationalen Kooperationspartnern aus Wirtschaft und Forschung. Weitere Informationen zu den Leistungen von Business Upper Austria im Bereich Vernetzung finden Sie hier.
Unsere Leistungen für Ihren Erfolg
Die Wirtschaftskammer Oberösterreich bietet professionelle Informations- und Beratungsleistungen zur Unterstützung von Wachstum und Sicherheit der Betriebe an.
Mit juristischen Fakten aus dem Vertragsrecht, Vergabe- und Wettbewerbsrecht, Datenschutz sowie Infos zu E-Commerce, Gesellschafts- und Insolvenzrecht, Miete und Pacht, etc.
Auf dieser Seite finden Sie eine Übersicht zum Serviceangebot zum Thema Gründung und Übergabe. Das Gründerservice der Wirtschaftskammern bietet Unternehmensgründern, Betriebsnachfolgern und Franchise-Nehmern professionelle Unterstützung beim Start ins Unternehmertum.
Ihr Kontakt zu den branchenübergreifenden und überregionalen Arbeitsgemeinschaften und Plattformen der WKO, wie z.B. Junge Wirtschaft, Frau in der Wirtschaft, Ein-Personen-Unternehmen, Enterprise Europe Network, etc.
Infos zu den Themen Betriebsanlagen-Genehmigung, Betriebsanlagen-Coaching/-Rechtsvertretung, Arbeitnehmerschutz, Umwelt, Normen.
Jetzt alles unternehmen!
Teilen