







Ihr neuer Business Standort im Linzer Hafenareal - an diesem zukunftsweisenden und nachhaltig geplanten Standort im Linzer Hafen finden diverse Unternehmen ihr High-Quality Büro- und Geschäftsobjekt.
In den drei miteinander verbundenen Bauteilen stehen Flächen ab ca. 220 m² zur Anmietung zur Verfügung. Neben der hochwertigen Business-Ausstattung der Einheiten erwartet den zukünftigen Mieter öffentlicher Gastronomiebereich im Erdgeschoß. Der flexible Grundriss der Büroflächen ermöglicht die Ansiedlung jeder gewünschten Bürogröße – vom Großraumbüro bis zur kleinen Start-up Einheit.
Als zentrales Bindeglied zwischen Hafenturm und Speziallagerhalle bildet das Hafenportal ein Kernelement von "Projekt Neuland“. Der öffentliche Verkehr ist direkt integriert in Form einer wettergeschützten Endhaltestelle.
Sichern Sie sich jetzt den zukünftigen Standort für Ihr aufstrebendes Unternehmen!
HIGHLIGHTS:
- Mitsprache hinsichtlich Gestaltungsmöglichkeiten im Innenausbau
- moderne Architektur & Grundrisse
- niedrige Betriebskosten – umweltfreundlich
- Klimazertifizierung ÖGNI Gold, Klimaaktiv Silber, ESG- und EU-Taxonomie-Konformität
- direkte Anbindung an die Autobahn A1 und A7
- bereits fertiggestellt
- beste Nachbarschaft - ca. 2/3 an ein weltweit bekanntes Technologieunternehmen vermietet
VERFÜGBARE BÜROFLÄCHEN:
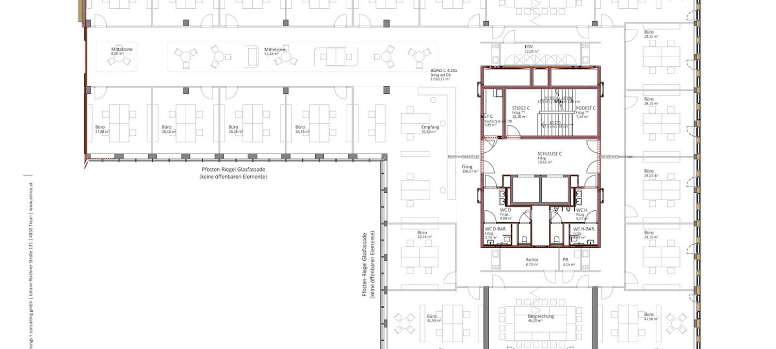
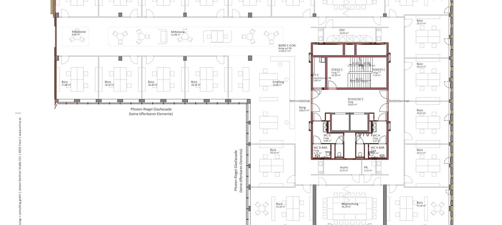
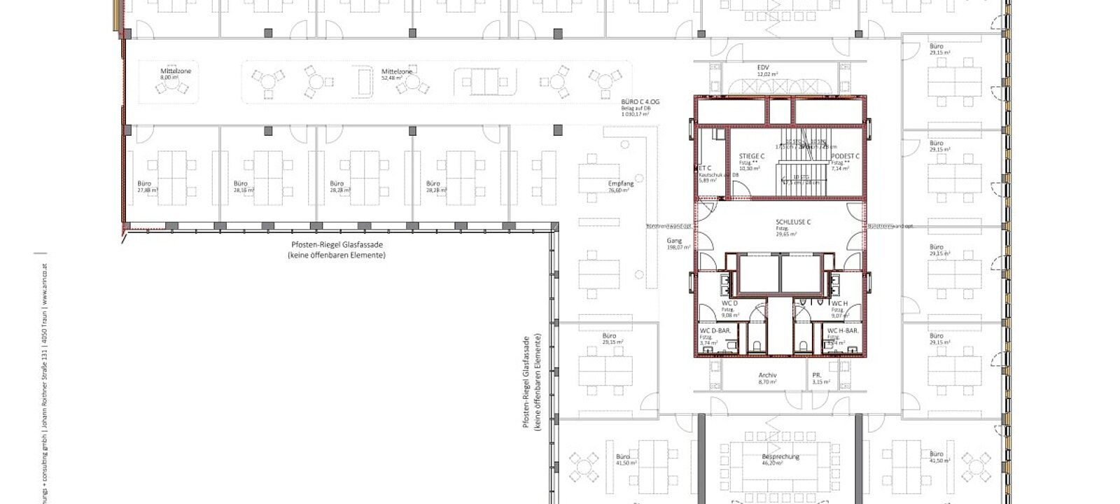
BAUTEIL C
1. OG gesamt ca. 671 m² (teilbar ab ca. 336 m²)
Nettomiete/m²/Monat: ab € 15,00
2. OG gesamt ca. 680 m² (teilbar ab ca. 340 m²) - bereits vermietet
3. OG gesamt ca. 680 m² (teilbar ab ca. 340 m²) - bereits vermietet
4. OG gesamt ca. 1.085 m² (teilbar ab ca. 362 m²)
Nettomiete/m²/Monat: ab € 15,50
5. OG gesamt ca. 1.089 m² (teilbar ab ca. 363 m²)
Nettomiete/m²/Monat: ab € 16,50
6. OG gesamt ca. 1.089 m² (teilbar ab ca. 363 m²)
Nettomiete/m²/Monat: ab € 17,50
VERFÜGBARE GESCHÄFTSFLÄCHEN:
EG Shop A gesamt ca. 289 m² - bereits vermietet
EG Shop B gesamt ca. 218 m²
Nettomiete/m²/Monat: € 20,00
EG Shop C gesamt ca. 407 m² - bereits vermietet
TIEFGARAGENPLÄTZE:
- gesamt ca. 257 - verfügbar ca. 52
- pro 100 m² kann ein Tiefgaragenplatz angemietet werden
- €125,00 / Stellplatz netto/Monat + €25,00 BK netto/Monat
Zentrale Lage im Neustadtviertel
Unmittelbare Nähe zum Hauptbahnhof Linz
Optimale Anbindung an öffentliche Verkehrsmittel
Schneller Zugang zu Autobahnen und Hauptverkehrsstraßen


Als Standortagentur des Landes trägt Business Upper Austria maßgeblich zur Stärkung und Weiterentwicklung des Wirtschaftsstandorts Oberösterreich bei.
Business Upper Austria ist die erste Adresse für alle, die am Standort Oberösterreich investieren wollen. Die oberösterreichische Standortagentur entwickelt Betriebsgebiete, unterstützt bei der Standort- und Mitarbeitersuche und berät Unternehmen zu nationalen und internationalen Förderungen. Weitere Informationen zu den Leistungen von Business Upper Austria im Bereich Investorenservice finden Sie hier.
Oberösterreich ist ein attraktiver Standort für innovative Unternehmen. Business Upper Austria fördert die Innovationskraft und Innovationsstrategien mit einer breiten Palette an maßgeschneiderten Dienstleistungen. Weitere Informationen zu den Leistungen von Business Upper Austria im Bereich Innovationsförderung finden Sie hier.
Business Upper Austria knüpft das Netzwerk, das Sie für Ihren wirtschaftlichen Erfolg brauchen. Die oberösterreichische Standortagentur unterstützt Sie bei der Suche nach nationalen und internationalen Kooperationspartnern aus Wirtschaft und Forschung. Weitere Informationen zu den Leistungen von Business Upper Austria im Bereich Vernetzung finden Sie hier.
Unsere Leistungen für Ihren Erfolg
Die Wirtschaftskammer Oberösterreich bietet professionelle Informations- und Beratungsleistungen zur Unterstützung von Wachstum und Sicherheit der Betriebe an.
Mit juristischen Fakten aus dem Vertragsrecht, Vergabe- und Wettbewerbsrecht, Datenschutz sowie Infos zu E-Commerce, Gesellschafts- und Insolvenzrecht, Miete und Pacht, etc.
Auf dieser Seite finden Sie eine Übersicht zum Serviceangebot zum Thema Gründung und Übergabe. Das Gründerservice der Wirtschaftskammern bietet Unternehmensgründern, Betriebsnachfolgern und Franchise-Nehmern professionelle Unterstützung beim Start ins Unternehmertum.
Ihr Kontakt zu den branchenübergreifenden und überregionalen Arbeitsgemeinschaften und Plattformen der WKO, wie z.B. Junge Wirtschaft, Frau in der Wirtschaft, Ein-Personen-Unternehmen, Enterprise Europe Network, etc.
Infos zu den Themen Betriebsanlagen-Genehmigung, Betriebsanlagen-Coaching/-Rechtsvertretung, Arbeitnehmerschutz, Umwelt, Normen.
Jetzt alles unternehmen!
Teilen