






Großzügige Büroflächen in 1A - Lage in der Welser Innenstadt - SOFORT VERFÜGBAR !
Büroflächen ab 200m2 bis 610m² verfügbar!
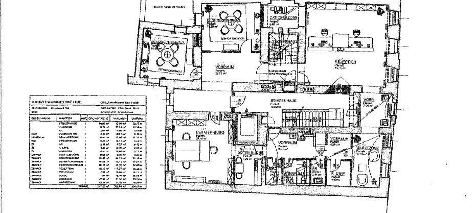
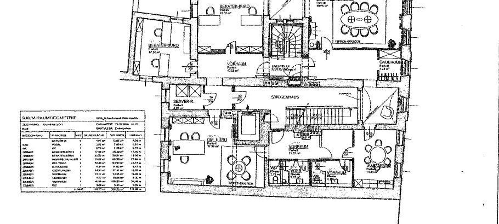
Im 1. OG dieses wunderschönen und repräsentativen Stadtgebäudes stehen 218 m² zur Verfügung, im 2. OG 192 m² (Gesamt 410 m²), zusätzlich können im 3.OG noch 200 m² angemietet werden, ebenso sind zusätzliche Lagerflächen im UG möglich.
Derzeit präsentiert sich das Objekt folgendermaßen:
1.OG: 4 Vorräume, Rezeption, Stiegenhaus, 3 Besprechungszimmer, Teeküche, WC, Abstellraum
Raumhöhen im 1. OG betragen ca. 285 cm
2. OG: 3 Vorräume, Server-Raum, Garderobe, 3 Besprechungszimmer, GF-Büro, WC, Sozialraum
Raumhöhen im 2. OG betragen ca. 263 cm
Mietkonditionen: auf Anfrage!
Ausreichende Parkmöglichkeiten im Umfeld: Anmietungsmöglichkeit von Dauerparkplätzen in den naheligenden Tiefgaragen (zB. Traunpark, Gerstlhaus) - Gerne legen wir hier den Kontakt.
Für weitere Auskünfte und die Vereinbarung von Besichtigungsterminen steht Ihnen der Wirtschaftsservice Wels unter 07242 67722-0 bzw. unter office@wels.at gerne jederzeit zur Verfügung.
| Flächenwidmung DORIS | externer Link | Öffnen |
| Google Maps | externer Link | Öffnen |
| documents_1751072958-5203.pdf | Download |


Als Standortagentur des Landes trägt Business Upper Austria maßgeblich zur Stärkung und Weiterentwicklung des Wirtschaftsstandorts Oberösterreich bei.
Business Upper Austria ist die erste Adresse für alle, die am Standort Oberösterreich investieren wollen. Die oberösterreichische Standortagentur entwickelt Betriebsgebiete, unterstützt bei der Standort- und Mitarbeitersuche und berät Unternehmen zu nationalen und internationalen Förderungen. Weitere Informationen zu den Leistungen von Business Upper Austria im Bereich Investorenservice finden Sie hier.
Oberösterreich ist ein attraktiver Standort für innovative Unternehmen. Business Upper Austria fördert die Innovationskraft und Innovationsstrategien mit einer breiten Palette an maßgeschneiderten Dienstleistungen. Weitere Informationen zu den Leistungen von Business Upper Austria im Bereich Innovationsförderung finden Sie hier.
Business Upper Austria knüpft das Netzwerk, das Sie für Ihren wirtschaftlichen Erfolg brauchen. Die oberösterreichische Standortagentur unterstützt Sie bei der Suche nach nationalen und internationalen Kooperationspartnern aus Wirtschaft und Forschung. Weitere Informationen zu den Leistungen von Business Upper Austria im Bereich Vernetzung finden Sie hier.
Unsere Leistungen für Ihren Erfolg
Die Wirtschaftskammer Oberösterreich bietet professionelle Informations- und Beratungsleistungen zur Unterstützung von Wachstum und Sicherheit der Betriebe an.
Mit juristischen Fakten aus dem Vertragsrecht, Vergabe- und Wettbewerbsrecht, Datenschutz sowie Infos zu E-Commerce, Gesellschafts- und Insolvenzrecht, Miete und Pacht, etc.
Auf dieser Seite finden Sie eine Übersicht zum Serviceangebot zum Thema Gründung und Übergabe. Das Gründerservice der Wirtschaftskammern bietet Unternehmensgründern, Betriebsnachfolgern und Franchise-Nehmern professionelle Unterstützung beim Start ins Unternehmertum.
Ihr Kontakt zu den branchenübergreifenden und überregionalen Arbeitsgemeinschaften und Plattformen der WKO, wie z.B. Junge Wirtschaft, Frau in der Wirtschaft, Ein-Personen-Unternehmen, Enterprise Europe Network, etc.
Infos zu den Themen Betriebsanlagen-Genehmigung, Betriebsanlagen-Coaching/-Rechtsvertretung, Arbeitnehmerschutz, Umwelt, Normen.
Jetzt alles unternehmen!
Teilen