











FUTURE - WORK - SPACE - LINZ -
QUICKFACTS
Büroflächen: ca. 1.593 m² (teilbar)
Nettomiete / m²: ab € 13,50 je nach Ausbaustandard
Betriebskostenakonto / m²: € 1,80 netto
Heiz-/Kühlkostenakonto / m²: € 1,70 netto
Parkplätze: € 115,00 / TG Stellplatz + € 15,00 BK zzgl. 20% USt
Bezugstermine: nach Vereinbarung
OBJEKTBESCHREIBUNG
In zentraler Lage der Digitalstadt Linz entsteht das Campus Neubauprojekt "TECHBASE LINZ"!
An diesem zukunftsweisenden und nachhaltig geplanten Standort finden innovative Unternehmen ihr High-End Büroobjekt.
Neben der hochwertigen Business-Austattung der Einheiten erwarten den zukünftigen Mieter auch ein Konferenzzentrum, Café und Restaurant sowie ein Supermarkt direkt am Campus der TECHBASE. Begegnungs- und Ruhezonen auf dem Areal für Besucher und Mitarbeiter schaffen Räume für Ideen. Gerne können Mieterwünsche in den noch verfügbaren Mietflächen miteinbezogen werden. In der nahen Umgebung befinden sich das WIFI OÖ, die LINZ AG Zentrale und zahlreiche weitere Einrichtungen. Sichern Sie sich jetzt den zukünftigen Standort für Ihr aufstrebendes Unternehmen! Wir freuen uns Ihnen das Projekt präsentieren zu können und beraten Sie gerne über die Möglichkeiten in der TECHBASE.
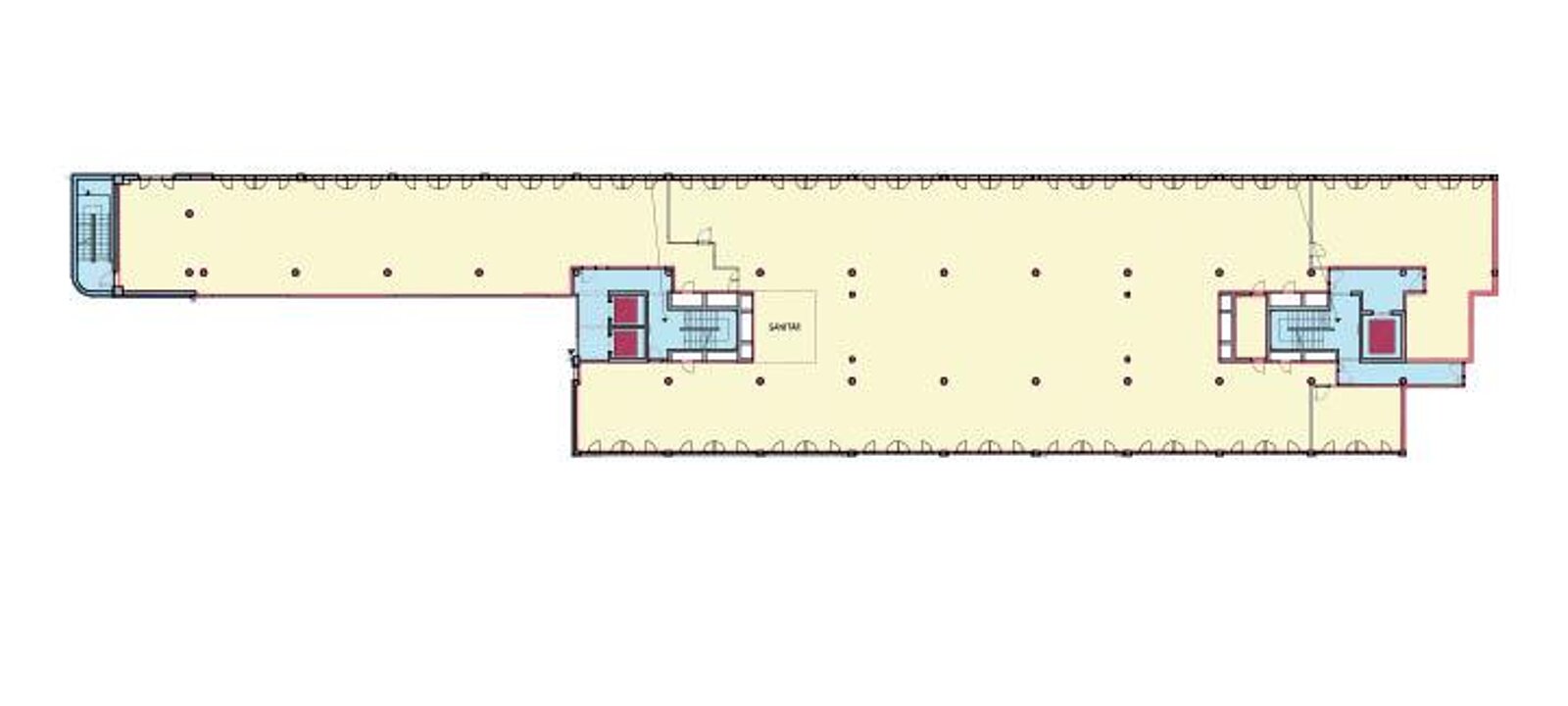
Verfügbare Flächen:
Bauteil 1
ca. 1.593 m² Mietfläche im 1. OG
teilbar in Einheiten mit
ca. 372 m², ca. 536 m² oder ca. 650 m²
Bestandsgebäude - generalsaniert
Bauteil 4
Mögliche Gesamtmietfläche: ca. 2.834 m²
Mietfläche Erdgeschoss: ca. 850 m² Geschäftsfläche (teilbar ab ca. 400 m²)
Mietflächen 1. & 2. OG: je ca. 992 m² Bürofläche
LAGE & VERKEHRSANBINDUNG
Der Standort der TECHBASE ist bestens gewählt und mit allen Verkehrsmitteln einfach zu erreichen. Straßenbahn und Bus halten direkt vor dem Objekt!
Sicher geplante Fahrradparkplätze befinden sich am Campus! Parkplätze sind in der Tiefgarage für € 115,00 / Stellplatz + € 15,00 BK und 20% USt. anmietbar. Einen sofortigen Anschluß an alle Hauptverkehrswege garantiert der Autobahnzubringer auf die A7 neben dem Campus.
AUSTATTUNG
Zustand: generalsaniert
Boden: Doppelboden mit Teppichfliesen
Fenster: öffenbar
Decke: abgehängte Gipskartondecke
Raumhöhe: lichte Höhe Büroflächen ca. 3,08 m
Beleuchtung: LED
Zutrittssystem: vorhanden
Klimatisierung: Fancoils
Lüftung: zentrale Lüftungsanlage
Heizung: zentral über Fernwärme
Lift: vorhanden
Brandmeldeanlage: automatisch
KONDITIONEN (NETTO)
Miete: ab € 13,50 m² / Monat
Betriebskostenakonto: € 1,80 / m² / Monat
Heiz-/Kühlkostenakonto: € 1,70 / m² / Monat
Strom: nach Verbrauch
Kaution: 3 BMM
Provision: 3 BMM + USt
Zögern Sie nicht uns bei etwaigen Rückfragen oder zur Vereinbarung eines unverbindlichen Besichtigungs- bzw. Beratungstermines zu kontaktieren. Unser Team steht Ihnen gerne zur Verfügung! Ihr Ansprechpartner: Herr Claudio Feistritzer (0664 / 12 88 000 bzw. 0732 / 77 0 88 5-22)
PS: Zahlreiche weitere Immobilien finden Sie auf unserer Homepage unter www.projektas.at
Hinweis: Wir verarbeiten personenbezogene Daten zu geschäftlichen Zwecken. Nähere Informationen finden Sie unter www.projektas.at
| Angaben gemäß gesetzlichem Erfordernis: | |||
| Miete | € | 21505,5 | zzgl 20% USt. |
| Betriebskosten | € | 2867,4 | zzgl 20% USt. |
| Umsatzsteuer | € | 4874,58 | |
| ------------------------------------------------------------------ | |||
| Gesamtbetrag | € | 29247,48 | |
| ------------------------------------------------------------------ | |||
| Heizwärmebedarf: | 86.0 kWh/(m²a) | ||
| Faktor Gesamtenergieeffizienz: | 1.23 | ||
Die folgenden Grundstücksinformationen werden über eine Koordinatenabfrage über das Digitale Oberösterreichisches Raum-Informations-System [DORIS] durchgeführt. Sollten vom User falsche Geokoordinaten bei der Inserats Erstellung oder via Makler-Software-Schnittstellen übermittelt worden sein, kann das Ergebnis von der tatsächlich angebotenen Immobilie divergieren.
| Flächenwidmung DORIS | externer Link | Öffnen |
| Google Maps | externer Link | Öffnen |
| documents_1754530061-9598.pdf | Download | |
| documents_1754530062-6706.pdf | Download |


Als Standortagentur des Landes trägt Business Upper Austria maßgeblich zur Stärkung und Weiterentwicklung des Wirtschaftsstandorts Oberösterreich bei.
Business Upper Austria ist die erste Adresse für alle, die am Standort Oberösterreich investieren wollen. Die oberösterreichische Standortagentur entwickelt Betriebsgebiete, unterstützt bei der Standort- und Mitarbeitersuche und berät Unternehmen zu nationalen und internationalen Förderungen. Weitere Informationen zu den Leistungen von Business Upper Austria im Bereich Investorenservice finden Sie hier.
Oberösterreich ist ein attraktiver Standort für innovative Unternehmen. Business Upper Austria fördert die Innovationskraft und Innovationsstrategien mit einer breiten Palette an maßgeschneiderten Dienstleistungen. Weitere Informationen zu den Leistungen von Business Upper Austria im Bereich Innovationsförderung finden Sie hier.
Business Upper Austria knüpft das Netzwerk, das Sie für Ihren wirtschaftlichen Erfolg brauchen. Die oberösterreichische Standortagentur unterstützt Sie bei der Suche nach nationalen und internationalen Kooperationspartnern aus Wirtschaft und Forschung. Weitere Informationen zu den Leistungen von Business Upper Austria im Bereich Vernetzung finden Sie hier.
Unsere Leistungen für Ihren Erfolg
Die Wirtschaftskammer Oberösterreich bietet professionelle Informations- und Beratungsleistungen zur Unterstützung von Wachstum und Sicherheit der Betriebe an.
Mit juristischen Fakten aus dem Vertragsrecht, Vergabe- und Wettbewerbsrecht, Datenschutz sowie Infos zu E-Commerce, Gesellschafts- und Insolvenzrecht, Miete und Pacht, etc.
Auf dieser Seite finden Sie eine Übersicht zum Serviceangebot zum Thema Gründung und Übergabe. Das Gründerservice der Wirtschaftskammern bietet Unternehmensgründern, Betriebsnachfolgern und Franchise-Nehmern professionelle Unterstützung beim Start ins Unternehmertum.
Ihr Kontakt zu den branchenübergreifenden und überregionalen Arbeitsgemeinschaften und Plattformen der WKO, wie z.B. Junge Wirtschaft, Frau in der Wirtschaft, Ein-Personen-Unternehmen, Enterprise Europe Network, etc.
Infos zu den Themen Betriebsanlagen-Genehmigung, Betriebsanlagen-Coaching/-Rechtsvertretung, Arbeitnehmerschutz, Umwelt, Normen.
Jetzt alles unternehmen!
Teilen