
















BÜRO - LOGISTIK - LAGER - NEUBAU
QUICKFACTS
Bürofläche: ca. 571 m² - 1.286 m² (erweiterbar)
Lager/Hallenfläche: nach Bedarf ab 750 m²
Laderampen: vorhanden
Stellplätze: PKW und LKW
Bezugstermin: Q1 2026
OBJEKTBESCHREIBUNG
Dieses attraktive und moderne Gewerbeprojekt AREA55 auf einer Gesamtfläche von über 50.000 m² bietet ab Ende 2025 neuen Raum für zukunftsorientierte Unternehmen. Auf dem Areal entsteht eine effiziente Mischung aus servicierten Lager- und Logistikflächen gepaart mit modernen Bürolösungen verschiedener Größen.
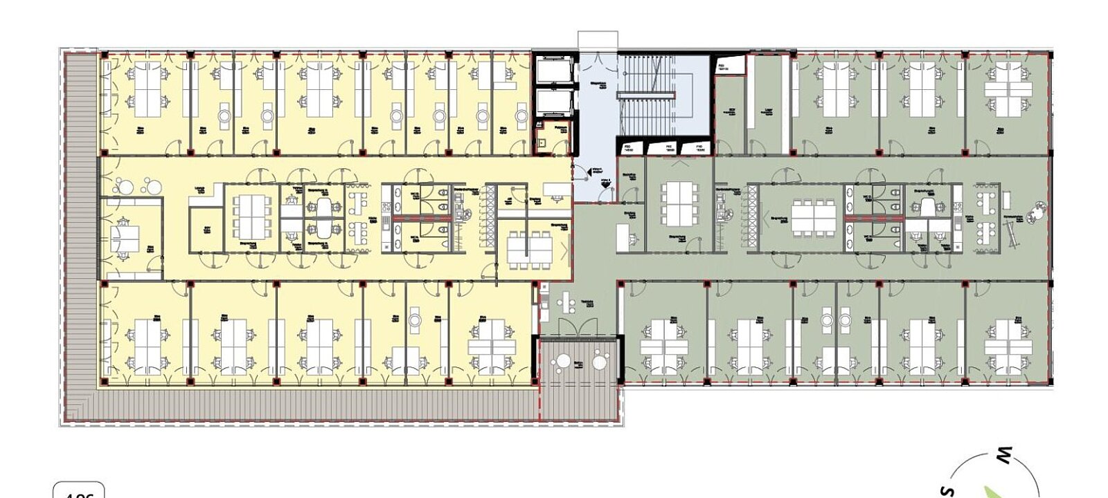
Verfügbare Flächen
Bürohauptgebäude:
Bürofläche: ca. 1.286m² (teilbar in ca. 571 m² und ca. 703 m²) auf einer Ebene
weitere Optionen mit ca. 390 m² auf einer Ebene möglich
Gebäudeteil Nord:
Bürofläche: ca. 1.382m² (teilbar in ca. 646 m² und ca. 729 m²) auf einer Ebene mit Dachterrasse
Lagerfläche: ca. 1.930 m² mit Erweiterungsmöglichkeiten (9 m Höhe)
Servicierte Hochregallagerflächen nach Bedarf ab ca. 750 m²
AUSSTATTUNGSMERKMALE
Boden: Büro mit Doppelboden und Teppich, Halle mit monolitischer Bodenplatte
Fenster: öffenbar
Sonnenschutz: Rafflamellenstores außen
Decke: abgehängt
Raumhöhe: Büro min. 2,80m, Halle min. 9,00m
Zwischenwände: Gipskarton beidseitig 2-fach beplankt
Beleuchtung: LED
Datenverkabelung: KAT7A
Zutrittssystem/Alarmanlage: vorhanden
Heizung: Heiz- / Kühldecke
Klima: Heiz- /Kühldecke
Teeküche: ja
Barrierefrei: ja
Lift: ja
Laderampe: ja
Brandmeldeanlage: ja
Sprinkleranlage: ja
Hervorzuheben sind attraktive Sozialbereiche, Mitarbeiterkantine sowie ein Fitnessbereich am Areal. Wir freuen uns Ihnen die Möglichkeiten an diesem Standort im Detail im Rahmen eines persönlichen Gespräches vorstellen zu dürfen.
LAGE & VERKEHRSANBINDUNG
Die AREA55 ist Teil der Erweiterung des rasch wachsenden Wirtschafts- und Gewerbeparks in St. Florian direkt neben der Hauptverkehrsader A1.
Der nahe gelegene Autobahnanschluss ohne Durchfahrt in Wohngebieten erlaubt uneingschränkte Zufahrtsmöglichkeiten und keine Restriktionen hinsichtlich der Betriebszeiten. Ein öffentlicher Shuttle-Service vom Bahnhof Asten wird in Zukunft ebenfalls angeboten. Parkplätze für Mitarbeiter sind selbstverständlich am Areal verfügbar.
KONDITIONEN (NETTO)
Indikative Miete Büro: ab € 12,00 / m² / Monat
Indikative Miete Lager: ab € 8,00 / m² / Monat
Parkplätze: PKW € 50,00
zzgl. Betriebskosten, Heiz- und Kühlkosten, Strom, 20% Ust
Befristung: nach Vereinbarung
Kaution: 3 - 6 BMM
Provision: 3 BMM
Zögern Sie nicht uns bei etwaigen Rückfragen oder zur Vereinbarung eines unverbindlichen Besichtigungs- bzw. Beratungstermines zu kontaktieren. Unser Team steht Ihnen gerne zur Verfügung! Ihr Ansprechpartner: Herr Claudio Feistritzer (0664 / 12 88 000 bzw. 0732 / 77 0 88 5-22)
PS: Zahlreiche weitere Immobilien finden Sie auf unserer Homepage unter www.projektas.at
Hinweis: Wir verarbeiten personenbezogene Daten zu geschäftlichen Zwecken. Nähere Informationen finden Sie unter www.projektas.at
| Angaben gemäß gesetzlichem Erfordernis: | |||
| Miete | € | 6852 | zzgl 20% USt. |
| Umsatzsteuer | € | 1370,4 | |
| ------------------------------------------------------------------ | |||
| Gesamtbetrag | € | 8222,4 | |
| ------------------------------------------------------------------ | |||
| Heizwärmebedarf: | 29.0 kWh/(m²a) | ||
| Klasse Heizwärmebedarf: | B | ||
| Faktor Gesamtenergieeffizienz: | 0.5 | ||
| Klasse Faktor Gesamtenergieeffizienz: | A++ | ||
| Homepage AREA 55 | externer Link | Öffnen |
| documents_1759282250-9746.pdf | Download | |
| documents_1759282251-7553.pdf | Download | |
| documents_1759282252-5407.pdf | Download |


Als Standortagentur des Landes trägt Business Upper Austria maßgeblich zur Stärkung und Weiterentwicklung des Wirtschaftsstandorts Oberösterreich bei.
Business Upper Austria ist die erste Adresse für alle, die am Standort Oberösterreich investieren wollen. Die oberösterreichische Standortagentur entwickelt Betriebsgebiete, unterstützt bei der Standort- und Mitarbeitersuche und berät Unternehmen zu nationalen und internationalen Förderungen. Weitere Informationen zu den Leistungen von Business Upper Austria im Bereich Investorenservice finden Sie hier.
Oberösterreich ist ein attraktiver Standort für innovative Unternehmen. Business Upper Austria fördert die Innovationskraft und Innovationsstrategien mit einer breiten Palette an maßgeschneiderten Dienstleistungen. Weitere Informationen zu den Leistungen von Business Upper Austria im Bereich Innovationsförderung finden Sie hier.
Business Upper Austria knüpft das Netzwerk, das Sie für Ihren wirtschaftlichen Erfolg brauchen. Die oberösterreichische Standortagentur unterstützt Sie bei der Suche nach nationalen und internationalen Kooperationspartnern aus Wirtschaft und Forschung. Weitere Informationen zu den Leistungen von Business Upper Austria im Bereich Vernetzung finden Sie hier.
Unsere Leistungen für Ihren Erfolg
Die Wirtschaftskammer Oberösterreich bietet professionelle Informations- und Beratungsleistungen zur Unterstützung von Wachstum und Sicherheit der Betriebe an.
Mit juristischen Fakten aus dem Vertragsrecht, Vergabe- und Wettbewerbsrecht, Datenschutz sowie Infos zu E-Commerce, Gesellschafts- und Insolvenzrecht, Miete und Pacht, etc.
Auf dieser Seite finden Sie eine Übersicht zum Serviceangebot zum Thema Gründung und Übergabe. Das Gründerservice der Wirtschaftskammern bietet Unternehmensgründern, Betriebsnachfolgern und Franchise-Nehmern professionelle Unterstützung beim Start ins Unternehmertum.
Ihr Kontakt zu den branchenübergreifenden und überregionalen Arbeitsgemeinschaften und Plattformen der WKO, wie z.B. Junge Wirtschaft, Frau in der Wirtschaft, Ein-Personen-Unternehmen, Enterprise Europe Network, etc.
Infos zu den Themen Betriebsanlagen-Genehmigung, Betriebsanlagen-Coaching/-Rechtsvertretung, Arbeitnehmerschutz, Umwelt, Normen.
Jetzt alles unternehmen!
Teilen