















Verschwenden Sie nicht Ihre Zeit oder ihr Geld. Hier können Sie ein Büro, eine Praxis, einen Firmensitz sofort mieten, jederzeit einziehen und gleich beginnen Geld zu verdienen. Sie müssen nichts renovieren – nicht Ihr Geld in eine fremde Immobilie investieren.
AUSSTATTUNG:
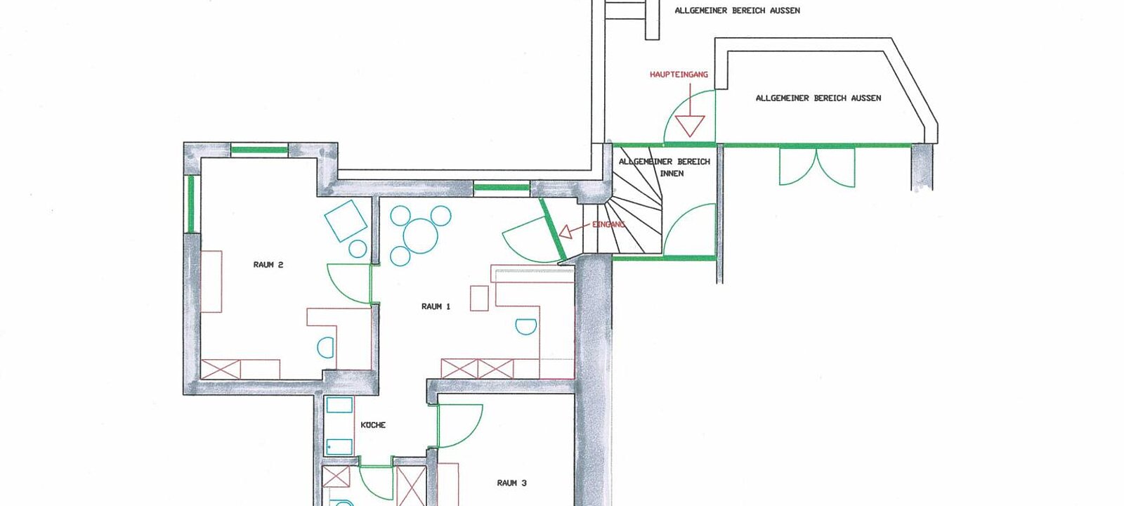
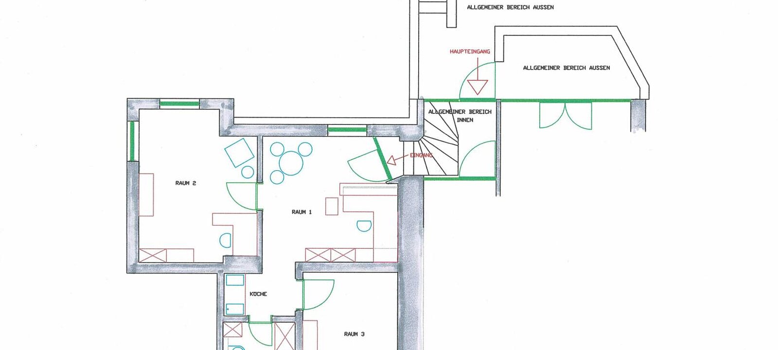
Das Objekt ist auf dem neuesten Stand, mit hochwertigsten Materialien ausgestattet. Fenster und Türen neu, Vollwärmeschutz, schwarzer Granit / schwarze Teppichfliesen, weiße Schleiflack Innentüren, Möbel vom Tischler gefertigt (weiß/Massivholz), Wellnessdusche, Waschschüsseln, Küche mit Geschirrspüler, Kühl-/Gefrierschrank, Cerankochfeld, Schreibtische weiß /Massivholz, Büroschränke mit Glastüren, Spind für Mitarbeiter, eigener Stromkreis für PC, eigener Stromkreis für Standardbenützung, Internetsteckdosen in allen Räumen (zum Aufbau eines Netzwerks), Bodensteckdosen, Garderobe, Beleuchtung komplett LED. Inklusive Allgemeiner Bereich (siehe Grundriss) drinnen und draußen, mit Werbeschild direkt an der Straße, Briefkasten, inkl. 2 Parkplätze
RAUM 1:
Empfangspult mit großem Eckschreibtisch aus Massivholz, Rollcontainer und Büroschränke mit Holz-, und Glastüren. Die Schranktüren sind teilweise sperrbar. Mit schwarzem Bürostuhl, komplett verstellbar. Relaxstuhl mit Fußablage, Garderobe, Barhocker für schnelle Besprechungen.
RAUM 2:
Eckschreibtisch aus Massivholz, schwarzem Bürostuhl, komplett verstellbar. Büroschränke mit verstellbaren Fächern und Ablagen, Relaxstuhl mit Fußablage, Garderobe, Fenster und Balkontür (inkl. Plissee als Sicht-, und Sonnenschutz). Es ist noch viel Platz frei, für einen zusätzlichen Schreibtisch, oder Behandlungstisch, Besprechungstisch, - je nach Bedarf.
RAUM 3:
Großer Raum mit eigener Waschschüssel, Büro Unterschrank und schmaler Büroschrank für Ordner, Muster, oder dergleichen. Gut geeignet für einen Besprechungsraum oder ähnliches. Elektrische Lüftung.
KÜCHE:
Ausgestattet mit Kühl-/ Gefrierschrank, Geschirrspüler, Edelstahlspüle, Cerankochfeld, Küchenschränke mit Vollauszügen (selbstschließend). LED Arbeitsplatzbeleuchtung, viel Stauraum
BAD / WC:
Waschschüssel mit Unterschrank, Grohe Armaturen, WC, Wellnessdusche, zwei versperrbare Spind, Badschrank mit Glastür, Spiegel, elektrische Lüftung, alles gesteuert über Bewegungsmelder, Handtuchtrockner
ALLGEMEINER BEREICH:
Zusätzlich kann man noch den allgemeinen Bereich mitbenützen, welcher sich draußen direkt neben dem Gehsteig und der Straße befindet. Dort befindet sich ein großes Firmenschild. Der Mieter kann dort seine Firmenwerbung platzieren (sehr gute Lage). Ebenfalls befindet sich dort auch der dazugehörige Briefkasten.
Ein weiterer allgemeiner Bereich ist drinnen (siehe Grundriss)
PARKPLÄTZE:
2 Parkplätze sind beinhaltet. Auch im Außenbereich ist alles neu, Granitpflaster, usw.
Heizung: Pellets mit Solar sowie Photovoltaik
Gemäß § 5, Abs. 3 Maklergesetz weisen wir daraufhin, dass wir als Doppelmakler tätig sind.
Bitte beachten Sie, dass wir aufgrund der Nachweispflicht gegenüber dem Eigentümer nur Anfragen mit vollständiger Angabe der Anschrift und Telefonnummer bearbeiten können.
Wir weisen darauf hin, dass alle Angaben nach bestem Wissen und Gewissen erstellt wurden. Die tatsächlichen Abmessungen können vom Plan abweichen. Hierfür übernehmen wir keine Haftung.
Für Auskünfte und Angaben, die uns von Seiten der Eigentümer und Dritten zur Verfügung gestellt wurden, übernehmen wir keine Haftung.
Dieses Angebot ist unverbindlich und frei bleibend.
Zwischenverwertung, Irrtümer, Druckfehler und Änderungen vorbehalten.
| Angaben gemäß gesetzlichem Erfordernis: | |||
| Miete | € | 390 | zzgl 20% USt. |
| Betriebskosten | € | 21 | zzgl 20% USt. |
| Heizkosten | € | 35 | zzgl 20% USt. |
| Umsatzsteuer | € | 89,2 | |
| ------------------------------------------------------------------ | |||
| Gesamtbetrag | € | 535,2 | |
| ------------------------------------------------------------------ | |||
| Heizwärmebedarf: | 197.5 kWh/(m²a) | ||
| Klasse Heizwärmebedarf: | G | ||
| Faktor Gesamtenergieeffizienz: | 1.88 | ||
| Klasse Faktor Gesamtenergieeffizienz: | F | ||
| documents_1746058069-6197.pdf | Download | |
| documents_1746058073-432.pdf | Download | |
| documents_1746058075-3452.pdf | Download |


Als Standortagentur des Landes trägt Business Upper Austria maßgeblich zur Stärkung und Weiterentwicklung des Wirtschaftsstandorts Oberösterreich bei.
Business Upper Austria ist die erste Adresse für alle, die am Standort Oberösterreich investieren wollen. Die oberösterreichische Standortagentur entwickelt Betriebsgebiete, unterstützt bei der Standort- und Mitarbeitersuche und berät Unternehmen zu nationalen und internationalen Förderungen. Weitere Informationen zu den Leistungen von Business Upper Austria im Bereich Investorenservice finden Sie hier.
Oberösterreich ist ein attraktiver Standort für innovative Unternehmen. Business Upper Austria fördert die Innovationskraft und Innovationsstrategien mit einer breiten Palette an maßgeschneiderten Dienstleistungen. Weitere Informationen zu den Leistungen von Business Upper Austria im Bereich Innovationsförderung finden Sie hier.
Business Upper Austria knüpft das Netzwerk, das Sie für Ihren wirtschaftlichen Erfolg brauchen. Die oberösterreichische Standortagentur unterstützt Sie bei der Suche nach nationalen und internationalen Kooperationspartnern aus Wirtschaft und Forschung. Weitere Informationen zu den Leistungen von Business Upper Austria im Bereich Vernetzung finden Sie hier.
Unsere Leistungen für Ihren Erfolg
Die Wirtschaftskammer Oberösterreich bietet professionelle Informations- und Beratungsleistungen zur Unterstützung von Wachstum und Sicherheit der Betriebe an.
Mit juristischen Fakten aus dem Vertragsrecht, Vergabe- und Wettbewerbsrecht, Datenschutz sowie Infos zu E-Commerce, Gesellschafts- und Insolvenzrecht, Miete und Pacht, etc.
Auf dieser Seite finden Sie eine Übersicht zum Serviceangebot zum Thema Gründung und Übergabe. Das Gründerservice der Wirtschaftskammern bietet Unternehmensgründern, Betriebsnachfolgern und Franchise-Nehmern professionelle Unterstützung beim Start ins Unternehmertum.
Ihr Kontakt zu den branchenübergreifenden und überregionalen Arbeitsgemeinschaften und Plattformen der WKO, wie z.B. Junge Wirtschaft, Frau in der Wirtschaft, Ein-Personen-Unternehmen, Enterprise Europe Network, etc.
Infos zu den Themen Betriebsanlagen-Genehmigung, Betriebsanlagen-Coaching/-Rechtsvertretung, Arbeitnehmerschutz, Umwelt, Normen.
Jetzt alles unternehmen!
Teilen