







NEUBAU - DACHGESCHOSS - KLIMA - LIFT
QUICKFACTS
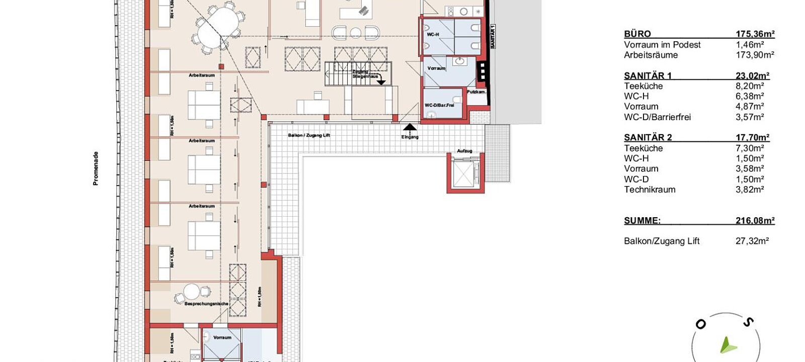
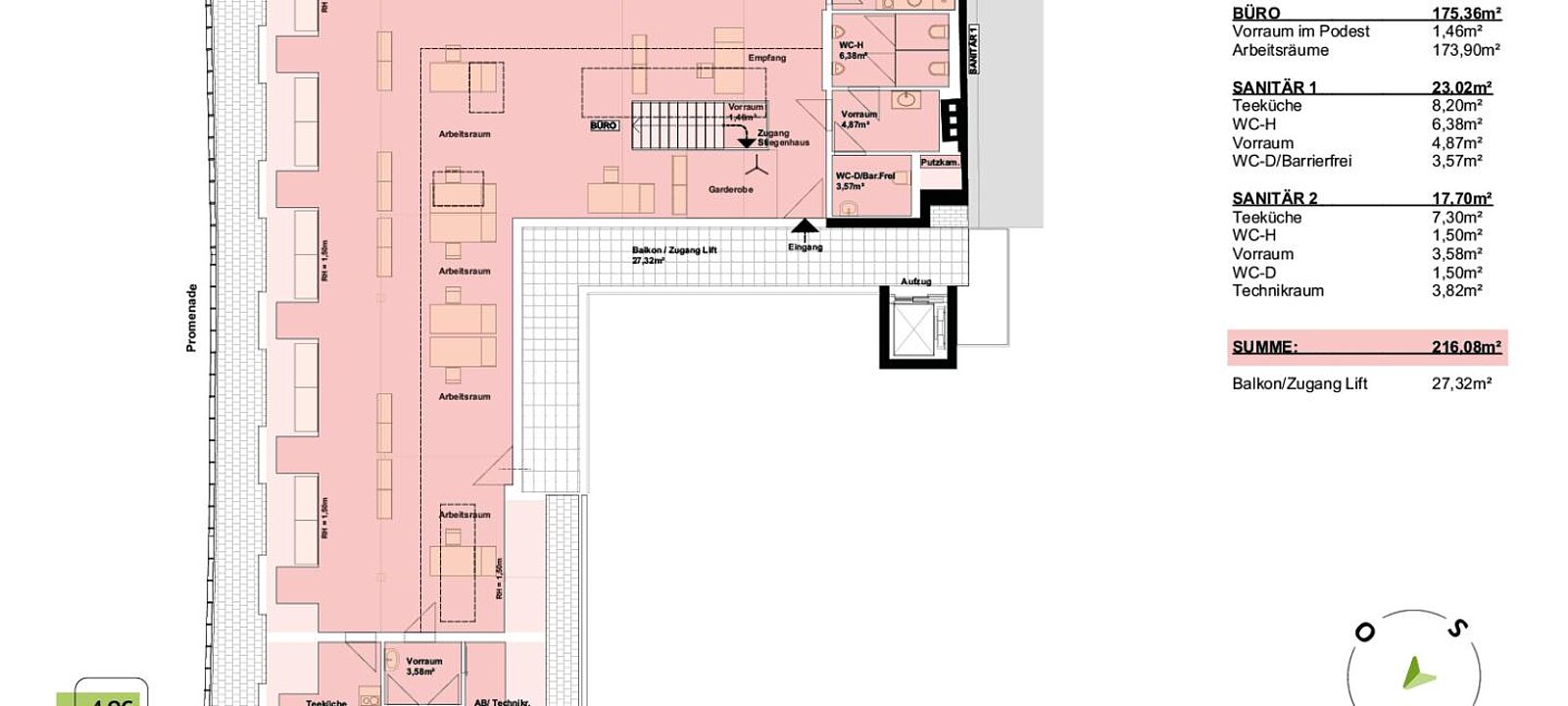
Nutzfläche gesamt: ca. 243,40 m²
Bürofläche: ca. 175 m²
Sanitärflächen ca. 40 m²
Balkonfläche: ca. 27 m²
Raumaufteilung: in Abstimmung mit Mieter
Stockwerk: 3. OG mit Lift
Nettomiete / m²: ab € 25,00 je nach Ausbaustufe
Bezugstermin: Q3 / 2026
OBJEKTBESCHREIBUNG
Im Zuge der aktuellen Sanierung dieses historischen Bestandsgebäudes entsteht ein neues, exklusives Büro im Dachgeschoss mit herrlichem Ausblick über die Promenade und das Landhaus.
Auf ca. 216 m² Nutzfläche können Ihre Büroräumlichkeiten nach Wunsch konfiguriert werden.
Das klimatisierte Büro ist selbstverständlich mit Lift erreichbar und bietet einem modernen Unternehmen einen idealen Rahmen.
Die voraussichtliche Fertigstellung ist mit Q2 2026 geplant und kann ab Sommer 2026 bezogen werden.
ERWEITERUNGSMÖGLICHKEIT
Im Erdgeschoss besteht die Option eine ca. 100 m² große Geschäftsfläche mit direktem Zugang auf die Promenade anzumieten.
Für den Lagerbedarf steht eine ca. 76m² große Einheit im Innenhof zur Verfügung.
Wir freuen uns Ihnen dieses Objekt in Bestlage im Rahmen eines persönlichen Beratungsgespräches im Detail vorstellen zu dürfen!
LAGE & VERKEHRSANBINDUNG
Das markante Eckgebäude Promenade 27 / Klammstrasse 2 liegt im Herzen der Linzer Innenstadt.
Landhaus, Landestheater und die Promenadengalerien bilden die unmittelbare Nachbarschaft.
Die belebte Promenade, Herrenstrasse und Spittelwiese vor der Türe bieten zahlreiche Einkaufsmöglichkeiten und eine Auswahl von vielen Gastronomiebetrieben. Ob zu Fuß, mit dem Fahrrad oder öffentlich mit dem Bus oder der Straßenbahn (Taubenmarkt) ist der Standort bestens erreichbar. Tiefgaragenparkplätze für Mitarbeiter und Besucher sind in der unmittelbaren Umgebung vorhanden.
AUSSTATTUNG
Zustand: Neubau Aufstockung
Boden: Parkett
Fenster: öffenbar
Heizung: Fernwärme
Klima: Deckenkühlung
Teeküche: möglich
Büromöbel: mieterseits
WC Anlagen: getrennt
Lift: vorhanden
KONDITIONEN (NETTO)
Miete: ab € 25,00 / m² / Monat abhängig von der Ausbaustufe
Betriebskosten: € 2,50 / m² / Monat
Heizkosten: nach Verbrauch
Strom: nach Verbrauch
Befristung: 10 Jahre
Kaution: 5 BMM
Provision: 3 BMM
Zögern Sie nicht uns bei etwaigen Rückfragen oder zur Vereinbarung eines unverbindlichen Besichtigungs- bzw. Beratungstermines zu kontaktieren. Unser Team steht Ihnen gerne zur Verfügung! Ihr Ansprechpartner: Herr Claudio Feistritzer (0664 / 12 88 000 bzw. 0732 / 77 0 88 5-22)
PS: Zahlreiche weitere Immobilien finden Sie auf unserer Homepage unter www.projektas.at
Hinweis: Wir verarbeiten personenbezogene Daten zu geschäftlichen Zwecken. Nähere Informationen finden Sie unter www.projektas.at
| Angaben gemäß gesetzlichem Erfordernis: | |||
| Heizwärmebedarf: | 109.0 kWh/(m²a) | ||
| Faktor Gesamtenergieeffizienz: | 1.18 | ||
| Flächenwidmung DORIS | externer Link | Öffnen |
| Google Maps | externer Link | Öffnen |
| documents_1773278878-7674.pdf | Download |


Als Standortagentur des Landes trägt Business Upper Austria maßgeblich zur Stärkung und Weiterentwicklung des Wirtschaftsstandorts Oberösterreich bei.
Business Upper Austria ist die erste Adresse für alle, die am Standort Oberösterreich investieren wollen. Die oberösterreichische Standortagentur entwickelt Betriebsgebiete, unterstützt bei der Standort- und Mitarbeitersuche und berät Unternehmen zu nationalen und internationalen Förderungen. Weitere Informationen zu den Leistungen von Business Upper Austria im Bereich Investorenservice finden Sie hier.
Oberösterreich ist ein attraktiver Standort für innovative Unternehmen. Business Upper Austria fördert die Innovationskraft und Innovationsstrategien mit einer breiten Palette an maßgeschneiderten Dienstleistungen. Weitere Informationen zu den Leistungen von Business Upper Austria im Bereich Innovationsförderung finden Sie hier.
Business Upper Austria knüpft das Netzwerk, das Sie für Ihren wirtschaftlichen Erfolg brauchen. Die oberösterreichische Standortagentur unterstützt Sie bei der Suche nach nationalen und internationalen Kooperationspartnern aus Wirtschaft und Forschung. Weitere Informationen zu den Leistungen von Business Upper Austria im Bereich Vernetzung finden Sie hier.
Unsere Leistungen für Ihren Erfolg
Die Wirtschaftskammer Oberösterreich bietet professionelle Informations- und Beratungsleistungen zur Unterstützung von Wachstum und Sicherheit der Betriebe an.
Mit juristischen Fakten aus dem Vertragsrecht, Vergabe- und Wettbewerbsrecht, Datenschutz sowie Infos zu E-Commerce, Gesellschafts- und Insolvenzrecht, Miete und Pacht, etc.
Auf dieser Seite finden Sie eine Übersicht zum Serviceangebot zum Thema Gründung und Übergabe. Das Gründerservice der Wirtschaftskammern bietet Unternehmensgründern, Betriebsnachfolgern und Franchise-Nehmern professionelle Unterstützung beim Start ins Unternehmertum.
Ihr Kontakt zu den branchenübergreifenden und überregionalen Arbeitsgemeinschaften und Plattformen der WKO, wie z.B. Junge Wirtschaft, Frau in der Wirtschaft, Ein-Personen-Unternehmen, Enterprise Europe Network, etc.
Infos zu den Themen Betriebsanlagen-Genehmigung, Betriebsanlagen-Coaching/-Rechtsvertretung, Arbeitnehmerschutz, Umwelt, Normen.
Jetzt alles unternehmen!
Teilen