









Linz - Urfahr: Loftige Bürostudios - Top modern in bester Stadtlage!
Erleben Sie die perfekte Verbindung von historischer Architektur und moderner Arbeitswelt im ehemaligen Verwaltungsgebäude der Ringbrotwerke, Baujahr 1917. Diese einzigartige Immobilie wird aktuell umfassend kernsaniert und bietet modernste Büro- und Seminarflächen auf fünf Ebenen mit einer beeindruckenden Gesamtfläche von ca. 1.520 m². Genießen Sie die Altbau - Ästhetik kombiniert mit einer offenen, loftartigen Raumgestaltung und einem herrschaftlichen Treppenhaus, das ihresgleichen sucht.
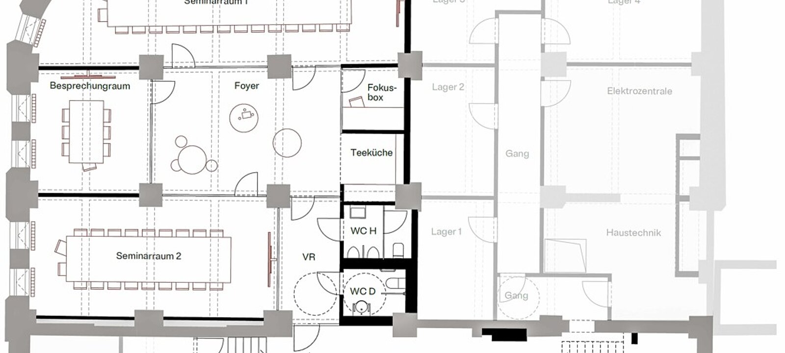
Das Untergeschoß beherbergt großzügige Seminar- und Veranstaltungsräume und die alte Stützenstruktur bietet im Erdgeschoß flexiblen Raum für hochwertige, lichtdurchflutete, loftartige Bürostudios, im Gesamtausmaß von ca. 464,5 m². In den clever integrierten Funktionsboxen befinden sich die notwendigen Infrastrukturen und schaffen eine überschaubare Ordnung in der offenen Raumsituation. Diese Boxen fungieren als Sanitärbereich, IT-Zone und Kopierabteilung und dienen gleichzeitig als Raumteiler für die Teeküche und den Aufenthaltsbereich der Mitarbeiter - es entsteht eine harmonische Ruhezone.
Der derzeitige Ausbaustand bietet Ihnen die Möglichkeit, in Abstimmung mit dem Bauträger, den Innenausbau teilweise selbst zu gestalten.
Dadurch reduziert sich der Mietpreis auf netto ab € 10,55 pro m².
Für zusätzlichen Stauraum stehen diverse Lagerräume im Untergeschoss zur Verfügung.
Diese Immobilie ist die ideale Bühne für Ihre professionelle Zukunft. Profitieren Sie von einer außergewöhnlichen Lage in der pulsierenden Stadt Linz und lassen Sie Ihrer Kreativität freien Lauf in einem inspirierenden Arbeitsumfeld.
Das Objekt befindet sich in prominenter Lage im Linzer Stadtteil Urfahr, am ehemaligen Standort der Ringbrotwerke, unweit der Urfahraner Hauptstraße. Die exzellente Anbindung an den öffentlichen Verkehr gewährleistet eine mühelose Erreichbarkeit: Die nächstgelegenen Haltestellen, Biegung und Rudolfstraße, sind nur einen kurzen Spaziergang entfernt. Von dort aus gelangen Sie mit der Straßen-bahn in ca. 5 Minuten zum zentralen Hauptplatz und in etwa 15 Minuten zum Linzer Hauptbahnhof.
Die Lage ist besonders attraktiv für Radfahrer, da die gesamte Umgebung gut ausgebaut und vernetzt ist, was eine schnelle und bequeme Anreise ermöglicht. Für Autofahrer bietet sich eine unkomplizierte Anfahrt, dank der Nähe zur Stadtautobahn und zu bedeutenden Verkehrsachsen. Diese kombinierten Merkmale machen das Objekt nicht nur zu einem leicht erreichbaren Standort, sondern auch zu einem idealen Knotenpunkt für den täglichen Pendelverkehr.
Die folgenden Grundstücksinformationen werden über eine Koordinatenabfrage über das Digitale Oberösterreichisches Raum-Informations-System [DORIS] durchgeführt. Sollten vom User falsche Geokoordinaten bei der Inserats Erstellung oder via Makler-Software-Schnittstellen übermittelt worden sein, kann das Ergebnis von der tatsächlich angebotenen Immobilie divergieren.


Als Standortagentur des Landes trägt Business Upper Austria maßgeblich zur Stärkung und Weiterentwicklung des Wirtschaftsstandorts Oberösterreich bei.
Business Upper Austria ist die erste Adresse für alle, die am Standort Oberösterreich investieren wollen. Die oberösterreichische Standortagentur entwickelt Betriebsgebiete, unterstützt bei der Standort- und Mitarbeitersuche und berät Unternehmen zu nationalen und internationalen Förderungen. Weitere Informationen zu den Leistungen von Business Upper Austria im Bereich Investorenservice finden Sie hier.
Oberösterreich ist ein attraktiver Standort für innovative Unternehmen. Business Upper Austria fördert die Innovationskraft und Innovationsstrategien mit einer breiten Palette an maßgeschneiderten Dienstleistungen. Weitere Informationen zu den Leistungen von Business Upper Austria im Bereich Innovationsförderung finden Sie hier.
Business Upper Austria knüpft das Netzwerk, das Sie für Ihren wirtschaftlichen Erfolg brauchen. Die oberösterreichische Standortagentur unterstützt Sie bei der Suche nach nationalen und internationalen Kooperationspartnern aus Wirtschaft und Forschung. Weitere Informationen zu den Leistungen von Business Upper Austria im Bereich Vernetzung finden Sie hier.
Unsere Leistungen für Ihren Erfolg
Die Wirtschaftskammer Oberösterreich bietet professionelle Informations- und Beratungsleistungen zur Unterstützung von Wachstum und Sicherheit der Betriebe an.
Mit juristischen Fakten aus dem Vertragsrecht, Vergabe- und Wettbewerbsrecht, Datenschutz sowie Infos zu E-Commerce, Gesellschafts- und Insolvenzrecht, Miete und Pacht, etc.
Auf dieser Seite finden Sie eine Übersicht zum Serviceangebot zum Thema Gründung und Übergabe. Das Gründerservice der Wirtschaftskammern bietet Unternehmensgründern, Betriebsnachfolgern und Franchise-Nehmern professionelle Unterstützung beim Start ins Unternehmertum.
Ihr Kontakt zu den branchenübergreifenden und überregionalen Arbeitsgemeinschaften und Plattformen der WKO, wie z.B. Junge Wirtschaft, Frau in der Wirtschaft, Ein-Personen-Unternehmen, Enterprise Europe Network, etc.
Infos zu den Themen Betriebsanlagen-Genehmigung, Betriebsanlagen-Coaching/-Rechtsvertretung, Arbeitnehmerschutz, Umwelt, Normen.
Jetzt alles unternehmen!
Teilen