



















Willkommen in Ihrem neuen Büro in bester Linzer Stadtlage! Diese erstklassige Immobilie erstreckt sich über eine großzügige Fläche von ca. 250 m², verteilt auf zwei Etagen, und bietet eine ausgezeichnete öffentliche Verkehrsanbindung.
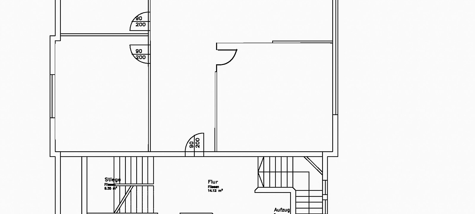
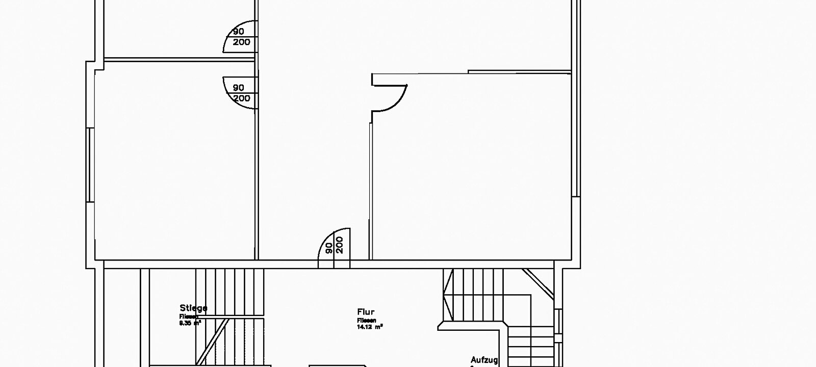
Im 5. Obergeschoss betreten Sie einen großzügigen Empfangsraum, der von drei sehr hellen Büroräumen und einer praktischen Teeküche ergänzt wird. Moderne Toilettenanlagen sorgen für zusätzlichen Komfort, ebenso ein Aufzug der einen barrierefreien Zugang in dieses Geschoss ermöglicht.
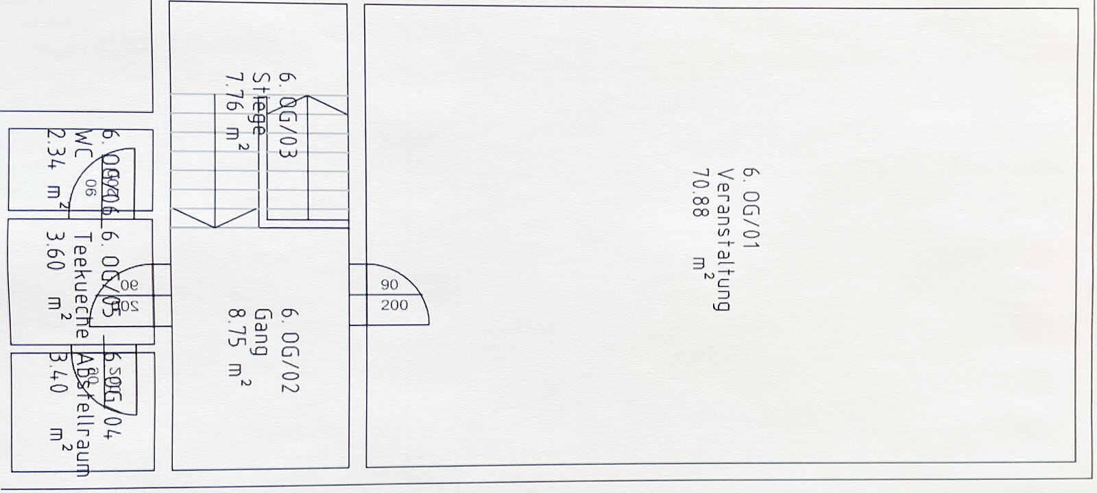
Das 6. Obergeschoss ist perfekt für Veranstaltungen aller Art geeignet, mit einem großen Veranstaltungsraum, einer zweiten kleinen Teeküche und weiteren WC-Anlagen. Hier lassen sich Meetings, Präsentationen und Events in einem ansprechenden Ambiente organisieren.
Besonders hervorzuheben sind die großen Fensterfronten, die das gesamte Büro mit reichlich Tageslicht versorgen und so eine angenehme Arbeitsatmosphäre schaffen. Eine integrierte Klimaanlage sorgt an heißen Tagen für die notwendige Abkühlung.
Zusätzlich besteht die Möglichkeit, zwei Tiefgaragenplätze sowie einen Kellerraum anzumieten, um Flexibilität und zusätzliche Kapazitäten für Ihr Unternehmen zu gewährleisten.
Nutzen Sie die vielfältigen Möglichkeiten, die diese Immobilie bietet, und gestalten Sie Ihren neuen Arbeitsbereich ganz nach Ihren Vorstellungen!
Für weitere Informationen oder zur Vereinbarung eines Besichtigungstermins steht Ihnen Herr Helmut Ries gerne unter der Mobilnummer +43 664 3461911 zur Verfügung.
In Kürze:
- Perfekte öffentliche Anbindung
- Hochwertig saniert!
- Zentrale Lage nähe Union - Kreuzung
- 2 Geschoße mit Innentreppe
- Großer Empfangsbereich und 3 Büroräume im 5. OG
- Teeküche und WC Anlagen in beiden Geschoßen
- ca. 70 m² großes Veranstaltungsraum im 6. OG
- Lift bis ins 5. OG - Barrierefrei
- Möglichkeit zur Anmietung von 2 TG PLätzen und einem seperatem Lagerraum
- Zentralheizung mit Fernwärme
Die folgenden Grundstücksinformationen werden über eine Koordinatenabfrage über das Digitale Oberösterreichisches Raum-Informations-System [DORIS] durchgeführt. Sollten vom User falsche Geokoordinaten bei der Inserats Erstellung oder via Makler-Software-Schnittstellen übermittelt worden sein, kann das Ergebnis von der tatsächlich angebotenen Immobilie divergieren.


Als Standortagentur des Landes trägt Business Upper Austria maßgeblich zur Stärkung und Weiterentwicklung des Wirtschaftsstandorts Oberösterreich bei.
Business Upper Austria ist die erste Adresse für alle, die am Standort Oberösterreich investieren wollen. Die oberösterreichische Standortagentur entwickelt Betriebsgebiete, unterstützt bei der Standort- und Mitarbeitersuche und berät Unternehmen zu nationalen und internationalen Förderungen. Weitere Informationen zu den Leistungen von Business Upper Austria im Bereich Investorenservice finden Sie hier.
Oberösterreich ist ein attraktiver Standort für innovative Unternehmen. Business Upper Austria fördert die Innovationskraft und Innovationsstrategien mit einer breiten Palette an maßgeschneiderten Dienstleistungen. Weitere Informationen zu den Leistungen von Business Upper Austria im Bereich Innovationsförderung finden Sie hier.
Business Upper Austria knüpft das Netzwerk, das Sie für Ihren wirtschaftlichen Erfolg brauchen. Die oberösterreichische Standortagentur unterstützt Sie bei der Suche nach nationalen und internationalen Kooperationspartnern aus Wirtschaft und Forschung. Weitere Informationen zu den Leistungen von Business Upper Austria im Bereich Vernetzung finden Sie hier.
Unsere Leistungen für Ihren Erfolg
Die Wirtschaftskammer Oberösterreich bietet professionelle Informations- und Beratungsleistungen zur Unterstützung von Wachstum und Sicherheit der Betriebe an.
Mit juristischen Fakten aus dem Vertragsrecht, Vergabe- und Wettbewerbsrecht, Datenschutz sowie Infos zu E-Commerce, Gesellschafts- und Insolvenzrecht, Miete und Pacht, etc.
Auf dieser Seite finden Sie eine Übersicht zum Serviceangebot zum Thema Gründung und Übergabe. Das Gründerservice der Wirtschaftskammern bietet Unternehmensgründern, Betriebsnachfolgern und Franchise-Nehmern professionelle Unterstützung beim Start ins Unternehmertum.
Ihr Kontakt zu den branchenübergreifenden und überregionalen Arbeitsgemeinschaften und Plattformen der WKO, wie z.B. Junge Wirtschaft, Frau in der Wirtschaft, Ein-Personen-Unternehmen, Enterprise Europe Network, etc.
Infos zu den Themen Betriebsanlagen-Genehmigung, Betriebsanlagen-Coaching/-Rechtsvertretung, Arbeitnehmerschutz, Umwelt, Normen.
Jetzt alles unternehmen!
Teilen