




PARKPLÄTZE - KLIMA - LIFT - BAHNHOF
QUICKFACTS
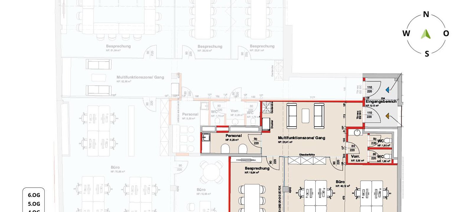
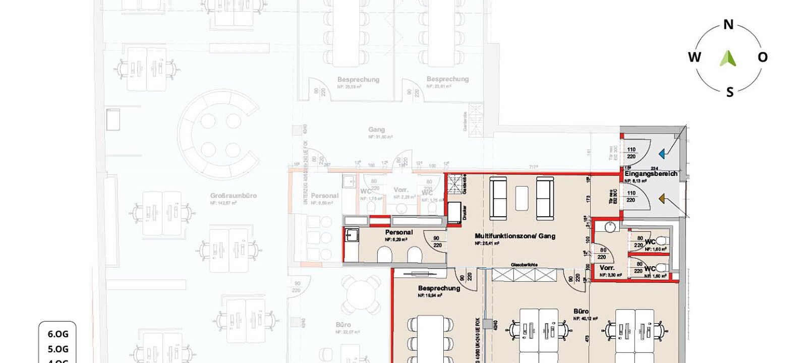
Nutzfläche: Büro 1 mit ca. 98,26 m² und Büro 2 mit ca. 258,90 m² oder gesamt ca. 358,17 m²
Stockwerk: Zwischengeschoss mit Lift
Parkplätze: hauseigene Tiefgarage
Nettomiete / m²: ab € 14,00
Bezugstermin: nach Vereinbarung
OBJEKTBESCHREIBUNG
Dieses klimatisierte Büroobjekt im Zwischengeschoss eines Bürogebäudes bietet einen attraktiven Standort für verschiedenste Unternehmen.
Grundrissvarianten mit ca. 98 m² (6-8 Personen), ca. 259 m² (15 Personen) oder ca. 260 m² (20 Personen) können noch mitgeplant werden.
LAGE & VERKEHRSANBINDUNG
Durch die Nähe zur Shoppingmeile Landstraße ist dieses Mietobjekt perfekt mit der Straßenbahn erreichbar. Es besteht die Möglichkeit in der hauseigenen Tiefgarage Parkplätze um € 125,00 netto zzgl. Betriebskosten anzumieten. Parkmöglichkeiten für Kunden befinden sich in der umliegenden Kurzparkzone und öffentlichen Parkgaragen.
AUSSTATTUNG
Zustand: gut
Boden: Parkett oder Teppich
Decke: abgehängt
Klima: zentral
Fenster: öffenbar
Sonnenschutz: innen
Teeküche: vorhanden
Lift: vorhanden
Beleuchtung: teilweise vorhanden
KONDITIONEN (NETTO)
Miete: ab € 14,00 / m² / Monat
Betriebskosten: € 3,65 / m² / Monat
Heizungskosten: nach Verbrauch
Strom: nach Verbrauch
Befristung: nach Vereinbarung
Kaution: 3 - 6 BMM
Provision: 3 BMM
| Angaben gemäß gesetzlichem Erfordernis: | |||
| Miete | € | 1375 | zzgl 20% USt. |
| Betriebskosten | € | 358,65 | zzgl 20% USt. |
| Umsatzsteuer | € | 346,73 | |
| ------------------------------------------------------------------ | |||
| Gesamtbetrag | € | 2080,38 | |
| ------------------------------------------------------------------ | |||
| Heizwärmebedarf: | 49.91 kWh/(m²a) | ||
| Klasse Heizwärmebedarf: | B | ||
Die folgenden Grundstücksinformationen werden über eine Koordinatenabfrage über das Digitale Oberösterreichisches Raum-Informations-System [DORIS] durchgeführt. Sollten vom User falsche Geokoordinaten bei der Inserats Erstellung oder via Makler-Software-Schnittstellen übermittelt worden sein, kann das Ergebnis von der tatsächlich angebotenen Immobilie divergieren.
| Flächenwidmung DORIS | externer Link | Öffnen |
| Google Maps | externer Link | Öffnen |
| documents_1772674181-8333.pdf | Download | |
| documents_1772674182-6135.pdf | Download | |
| documents_1772674183-4359.pdf | Download | |
| documents_1772674184-2376.pdf | Download | |
| documents_1772674185-0446.pdf | Download | |
| documents_1772674185-8536.pdf | Download | |
| documents_1772674186-6557.pdf | Download |


Als Standortagentur des Landes trägt Business Upper Austria maßgeblich zur Stärkung und Weiterentwicklung des Wirtschaftsstandorts Oberösterreich bei.
Business Upper Austria ist die erste Adresse für alle, die am Standort Oberösterreich investieren wollen. Die oberösterreichische Standortagentur entwickelt Betriebsgebiete, unterstützt bei der Standort- und Mitarbeitersuche und berät Unternehmen zu nationalen und internationalen Förderungen. Weitere Informationen zu den Leistungen von Business Upper Austria im Bereich Investorenservice finden Sie hier.
Oberösterreich ist ein attraktiver Standort für innovative Unternehmen. Business Upper Austria fördert die Innovationskraft und Innovationsstrategien mit einer breiten Palette an maßgeschneiderten Dienstleistungen. Weitere Informationen zu den Leistungen von Business Upper Austria im Bereich Innovationsförderung finden Sie hier.
Business Upper Austria knüpft das Netzwerk, das Sie für Ihren wirtschaftlichen Erfolg brauchen. Die oberösterreichische Standortagentur unterstützt Sie bei der Suche nach nationalen und internationalen Kooperationspartnern aus Wirtschaft und Forschung. Weitere Informationen zu den Leistungen von Business Upper Austria im Bereich Vernetzung finden Sie hier.
Unsere Leistungen für Ihren Erfolg
Die Wirtschaftskammer Oberösterreich bietet professionelle Informations- und Beratungsleistungen zur Unterstützung von Wachstum und Sicherheit der Betriebe an.
Mit juristischen Fakten aus dem Vertragsrecht, Vergabe- und Wettbewerbsrecht, Datenschutz sowie Infos zu E-Commerce, Gesellschafts- und Insolvenzrecht, Miete und Pacht, etc.
Auf dieser Seite finden Sie eine Übersicht zum Serviceangebot zum Thema Gründung und Übergabe. Das Gründerservice der Wirtschaftskammern bietet Unternehmensgründern, Betriebsnachfolgern und Franchise-Nehmern professionelle Unterstützung beim Start ins Unternehmertum.
Ihr Kontakt zu den branchenübergreifenden und überregionalen Arbeitsgemeinschaften und Plattformen der WKO, wie z.B. Junge Wirtschaft, Frau in der Wirtschaft, Ein-Personen-Unternehmen, Enterprise Europe Network, etc.
Infos zu den Themen Betriebsanlagen-Genehmigung, Betriebsanlagen-Coaching/-Rechtsvertretung, Arbeitnehmerschutz, Umwelt, Normen.
Jetzt alles unternehmen!
Teilen