
















OFFICE - BESPRECHUNG - OUTDOORAREA - PARKPLÄTZE
QUICKFACTS
Nutzfläche gesamt: ca. 603,50 m²
Bürofläche: ca. 450 m²
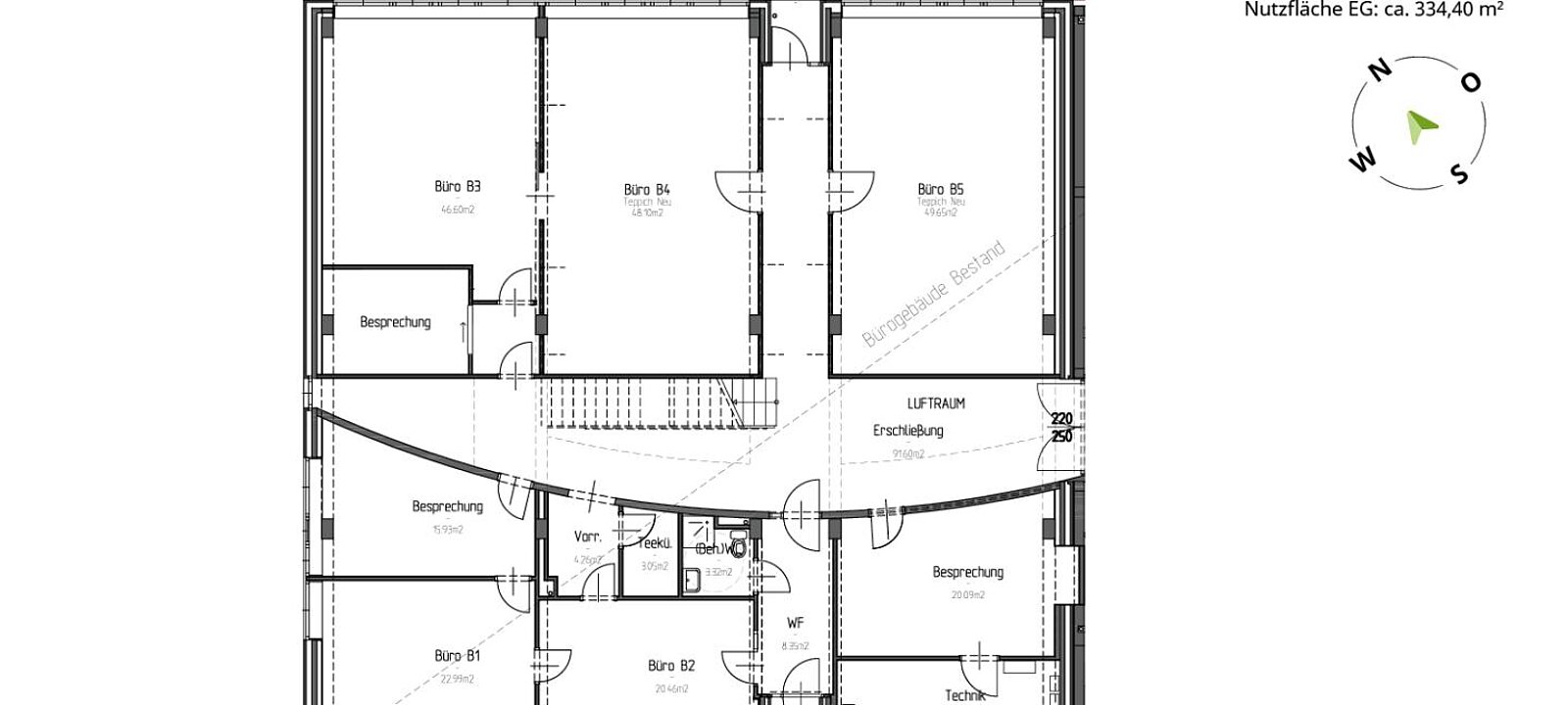
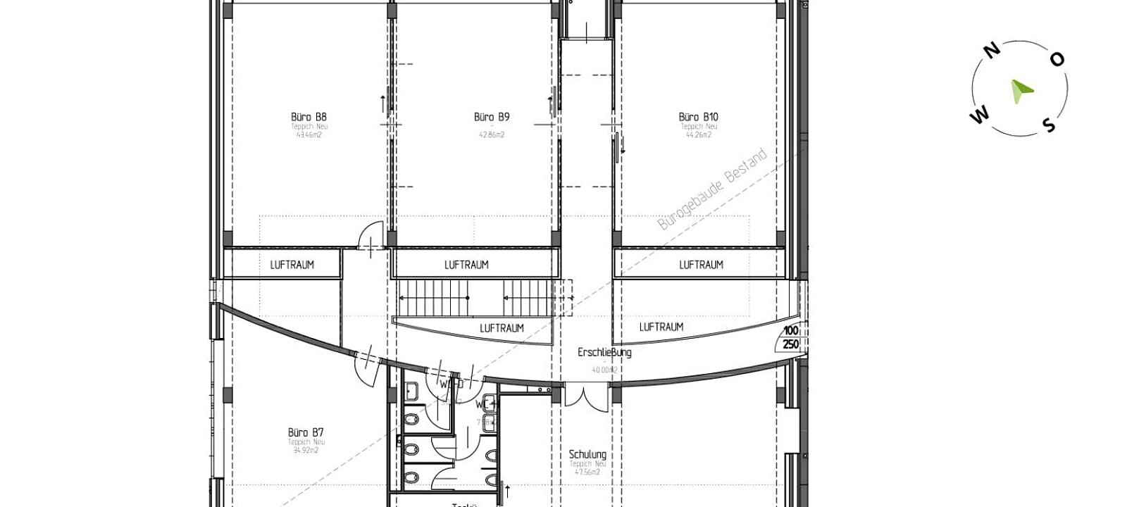
Raumaufteilung: laut Planskizze
Stockwerk: EG & OG
Parkplätze: 10 Parkplätze inklusive
WC Anlagen: 4
Nettomiete / m²: € 13,09
Bezugstermin: ab sofort nach Vereinbarung
OBJEKTBESCHREIBUNG
Dieses Büroobjekt mit ca. 600 m² Nutzfläche über 2 Ebenen bietet eine durchdachte Raumaufteilung mit Empfang, Büroräumen zwischen 20 m² und 50 m², Besprechungsräumen, Phonebooth, Teeküchenmöglichkeit und einer Freiluftfläche.
Bei Bedarf kann im Hauptgebäude für Veranstaltungen ein großzügiger Seminarraum mit Terrasse angemietet werden. Parkmöglichkeiten für Kunden und Mitarbeiter befinden sich direkt vor dem Gebäude.
Wir freuen uns Ihnen dieses teilmöblierte Büroobjekt im Rahmen eines persönlichen Beratungsgespräches näher vorstellen zu dürfen.
LAGE & VERKEHRSANBINDUNG
Das Bürogebäude liegt im Gewerbegebiet "Südpark" in Pichling mit öffentlichem Busanschluss and rascher Verbindung zur B 1 und A 1 (Autobahnauffahrt Asten).
10 Parkplätze vor dem Gebäude sind bereits inkludiert.
AUSSTATTUNG
Zustand: sehr gut
Boden: Teppich, Fliese
Fenster: öffenbar
Sonnenschutz: innen
Decke: teilweise abgehängt
Beleuchtung: vorhanden
Datenverkabelung: vorhanden
Zutrittssystem/Alarmanlage: möglich
Heizung: Gas
Klima: Deckengeräte, zentral
Teeküche: möglich
Möblierung: teilweise
KONDITIONEN (NETTO)
Miete: € 13,09 / m² / Monat
Gesamtmiete: € 7.900,00 / Monat
Betriebskosten: € 2,50 / m² / Monat
Gesamtbetriebskosten: € 1.508,75 / Monat
Heizkosten: € 0,80 / m² / Monat
Gesamtheizkosten: € 482,80 / Monat
Strom: nach Verbrauch
Sonstige: Glasfaseranschluss via Linz AG
Befristung: ab 5 Jahre
Kaution: 3 BMM
Provision: 3 BMM
Zögern Sie nicht uns bei etwaigen Rückfragen oder zur Vereinbarung eines unverbindlichen Besichtigungs- bzw. Beratungstermines zu kontaktieren. Unser Team steht Ihnen gerne zur Verfügung! Ihr Ansprechpartner: Herr Claudio Feistritzer (0664 / 12 88 000 bzw. 0732 / 77 0 88 5-22)
PS: Zahlreiche weitere Immobilien finden Sie auf unserer Homepage unter www.projektas.at
Hinweis: Wir verarbeiten personenbezogene Daten zu geschäftlichen Zwecken. Nähere Informationen finden Sie unter www.projektas.at
| Angaben gemäß gesetzlichem Erfordernis: | |||
| Miete | € | 7900 | zzgl 20% USt. |
| Betriebskosten | € | 1508 | zzgl 20% USt. |
| Heizkosten | € | 482,8 | zzgl 20% USt. |
| Umsatzsteuer | € | 1978,16 | |
| ------------------------------------------------------------------ | |||
| Gesamtbetrag | € | 11772,4 | |
| ------------------------------------------------------------------ | |||
| Heizwärmebedarf: | 68.0 kWh/(m²a) | ||
| Klasse Heizwärmebedarf: | C | ||
| Faktor Gesamtenergieeffizienz: | 0.83 | ||
| Klasse Faktor Gesamtenergieeffizienz: | A | ||
Die folgenden Grundstücksinformationen werden über eine Koordinatenabfrage über das Digitale Oberösterreichisches Raum-Informations-System [DORIS] durchgeführt. Sollten vom User falsche Geokoordinaten bei der Inserats Erstellung oder via Makler-Software-Schnittstellen übermittelt worden sein, kann das Ergebnis von der tatsächlich angebotenen Immobilie divergieren.
| Flächenwidmung DORIS | externer Link | Öffnen |
| Google Maps | externer Link | Öffnen |
| documents_1775093533-1611.pdf | Download |


Als Standortagentur des Landes trägt Business Upper Austria maßgeblich zur Stärkung und Weiterentwicklung des Wirtschaftsstandorts Oberösterreich bei.
Business Upper Austria ist die erste Adresse für alle, die am Standort Oberösterreich investieren wollen. Die oberösterreichische Standortagentur entwickelt Betriebsgebiete, unterstützt bei der Standort- und Mitarbeitersuche und berät Unternehmen zu nationalen und internationalen Förderungen. Weitere Informationen zu den Leistungen von Business Upper Austria im Bereich Investorenservice finden Sie hier.
Oberösterreich ist ein attraktiver Standort für innovative Unternehmen. Business Upper Austria fördert die Innovationskraft und Innovationsstrategien mit einer breiten Palette an maßgeschneiderten Dienstleistungen. Weitere Informationen zu den Leistungen von Business Upper Austria im Bereich Innovationsförderung finden Sie hier.
Business Upper Austria knüpft das Netzwerk, das Sie für Ihren wirtschaftlichen Erfolg brauchen. Die oberösterreichische Standortagentur unterstützt Sie bei der Suche nach nationalen und internationalen Kooperationspartnern aus Wirtschaft und Forschung. Weitere Informationen zu den Leistungen von Business Upper Austria im Bereich Vernetzung finden Sie hier.
Unsere Leistungen für Ihren Erfolg
Die Wirtschaftskammer Oberösterreich bietet professionelle Informations- und Beratungsleistungen zur Unterstützung von Wachstum und Sicherheit der Betriebe an.
Mit juristischen Fakten aus dem Vertragsrecht, Vergabe- und Wettbewerbsrecht, Datenschutz sowie Infos zu E-Commerce, Gesellschafts- und Insolvenzrecht, Miete und Pacht, etc.
Auf dieser Seite finden Sie eine Übersicht zum Serviceangebot zum Thema Gründung und Übergabe. Das Gründerservice der Wirtschaftskammern bietet Unternehmensgründern, Betriebsnachfolgern und Franchise-Nehmern professionelle Unterstützung beim Start ins Unternehmertum.
Ihr Kontakt zu den branchenübergreifenden und überregionalen Arbeitsgemeinschaften und Plattformen der WKO, wie z.B. Junge Wirtschaft, Frau in der Wirtschaft, Ein-Personen-Unternehmen, Enterprise Europe Network, etc.
Infos zu den Themen Betriebsanlagen-Genehmigung, Betriebsanlagen-Coaching/-Rechtsvertretung, Arbeitnehmerschutz, Umwelt, Normen.
Jetzt alles unternehmen!
Teilen