















Informationen zum Mietverhältnis und zu den Mieteinnahmen
Befristung Mietverhältnis: unbefristet
monatlich Nettomiete (€ 4.301,81) abzüglich Rücklagen (€ 884,80): € 3.417,01
Netto-Jahresmietertrag abzüglich Rückalgen: € 41.004,12
Kaufpreis: € 480.000,00
Rendite ohne Nebenkosten: 8,54%
Mitten im Zentrum von Steyr gelangt ein seit über 20 Jahren an die Volkshilfe vermietetes Gewerbeobjekt zum Verkauf.
In einer Zeit, die von Veränderungen und Unsicherheiten geprägt ist, steht die Immobilie für Kontinuität, Verlässlichkeit und planbaren Bestandsertrag.
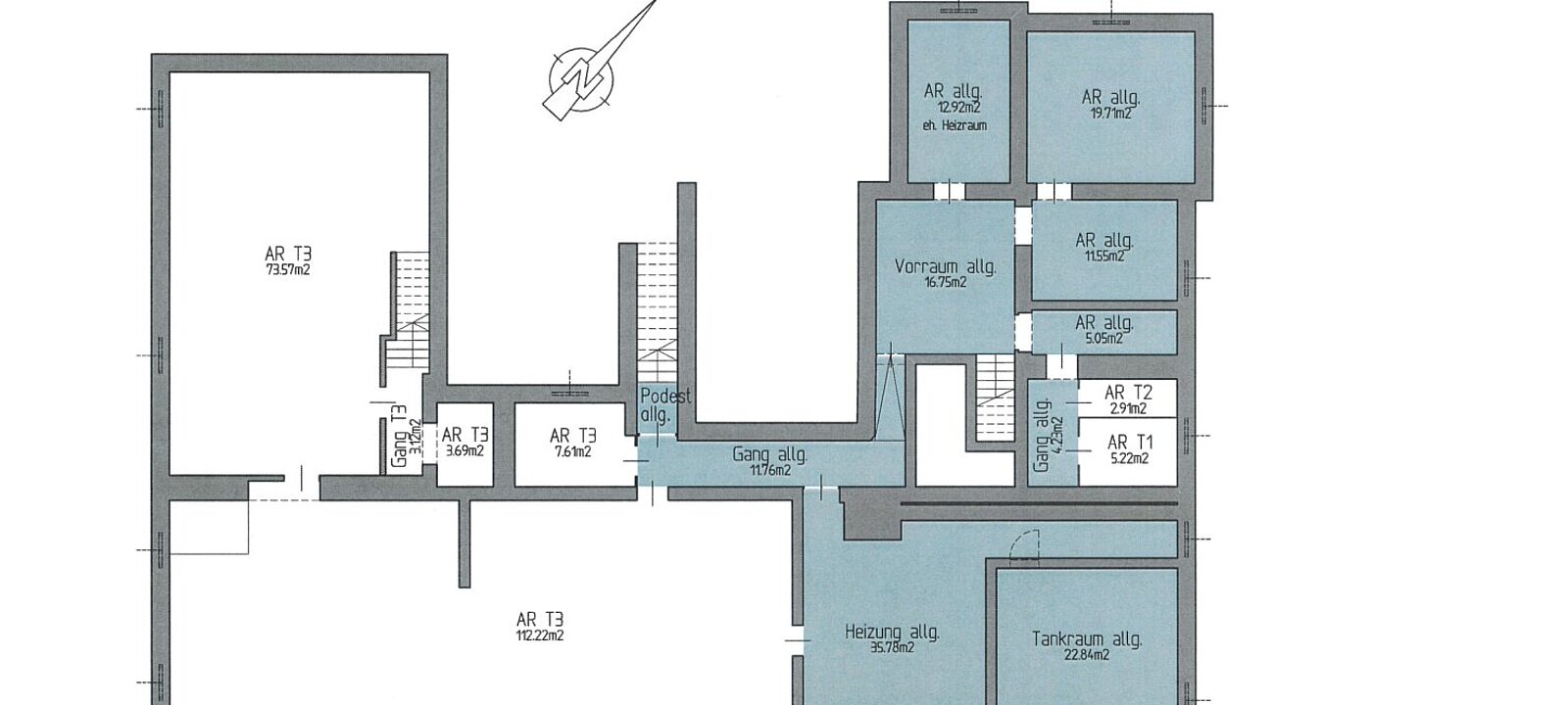
Die gesamte Nutzfläche von ca. 1.208,77 m² erstreckt sich über zwei Ebenen und ist wie folgt aufgeteilt:
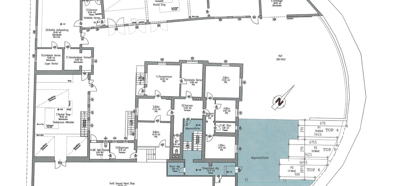
* Nutzfläche im Erdgeschoss: ca. 642,46 m² (Verkaufs-/Geschäftsräume, Sortier-/Aufbereitungsräume, Schulungsräume, Büros, Personalräume, Lager- bzw. Zwischenlager, Umkleiden für Damen/Herren, Sanitärbereiche für Damen/Herren)
* Nutzfläche im Kellergeschoss: ca. 200,21 m² (Lager- und Stauraum)
* Hoffläche im Außenbereich: ca. 366,10 m² (für Lieferverkehr bzw. Kundenverkehr geeignet)
Die zentrale Lage in Steyr stellt einen wesentlichen Vorteil dar - kurze Wege, eine gute Erreichbarkeit sowie die etablierte Nutzung sorgen für eine hohe Nutzungs- und Nachfragesicherheit. Für den laufenden Betrieb ist die Parksituation ebenfalls berücksichtigt; zur vermieteten Einheit stehen insgesamt 5 KFZ-Stellplätze im Freien zur Verfügung.
In Summe bietet das Objekt ein umfassendes Flächenangebot, das die betrieblichen Anforderungen abdeckt und zugleich Spielraum für Lagerung und Tagesabläufe ermöglicht.
In unmittelbarer Umgebung befinden sich sämtliche Einrichtungen der Infrastruktur, darunter öffentliche Verkehrsmittel, Einkaufsmöglichkeiten sowie Gastronomie. Darüber hinaus sind ärztliche Versorgung und Schulen in der Nähe gegeben.
Die Räumlichkeiten sind ab sofort verfügbar.
Überzeugen Sie sich bei einer unverbindlichen Besichtigung von den Gegebenheiten vor Ort
Der Vermittler ist als Doppelmakler tätig.
| Flächenwidmung DORIS | externer Link | Öffnen |
| Google Maps | externer Link | Öffnen |
| documents_1776047611-413.pdf | Download |


Als Standortagentur des Landes trägt Business Upper Austria maßgeblich zur Stärkung und Weiterentwicklung des Wirtschaftsstandorts Oberösterreich bei.
Business Upper Austria ist die erste Adresse für alle, die am Standort Oberösterreich investieren wollen. Die oberösterreichische Standortagentur entwickelt Betriebsgebiete, unterstützt bei der Standort- und Mitarbeitersuche und berät Unternehmen zu nationalen und internationalen Förderungen. Weitere Informationen zu den Leistungen von Business Upper Austria im Bereich Investorenservice finden Sie hier.
Oberösterreich ist ein attraktiver Standort für innovative Unternehmen. Business Upper Austria fördert die Innovationskraft und Innovationsstrategien mit einer breiten Palette an maßgeschneiderten Dienstleistungen. Weitere Informationen zu den Leistungen von Business Upper Austria im Bereich Innovationsförderung finden Sie hier.
Business Upper Austria knüpft das Netzwerk, das Sie für Ihren wirtschaftlichen Erfolg brauchen. Die oberösterreichische Standortagentur unterstützt Sie bei der Suche nach nationalen und internationalen Kooperationspartnern aus Wirtschaft und Forschung. Weitere Informationen zu den Leistungen von Business Upper Austria im Bereich Vernetzung finden Sie hier.
Unsere Leistungen für Ihren Erfolg
Die Wirtschaftskammer Oberösterreich bietet professionelle Informations- und Beratungsleistungen zur Unterstützung von Wachstum und Sicherheit der Betriebe an.
Mit juristischen Fakten aus dem Vertragsrecht, Vergabe- und Wettbewerbsrecht, Datenschutz sowie Infos zu E-Commerce, Gesellschafts- und Insolvenzrecht, Miete und Pacht, etc.
Auf dieser Seite finden Sie eine Übersicht zum Serviceangebot zum Thema Gründung und Übergabe. Das Gründerservice der Wirtschaftskammern bietet Unternehmensgründern, Betriebsnachfolgern und Franchise-Nehmern professionelle Unterstützung beim Start ins Unternehmertum.
Ihr Kontakt zu den branchenübergreifenden und überregionalen Arbeitsgemeinschaften und Plattformen der WKO, wie z.B. Junge Wirtschaft, Frau in der Wirtschaft, Ein-Personen-Unternehmen, Enterprise Europe Network, etc.
Infos zu den Themen Betriebsanlagen-Genehmigung, Betriebsanlagen-Coaching/-Rechtsvertretung, Arbeitnehmerschutz, Umwelt, Normen.
Jetzt alles unternehmen!
Teilen