




Nutzen Sie die CHANCE * 2 MONATE MIETFREI
LAGE
Nahe Mauthausen im Industriegebiet an der Donau Bundesstraße. Sehr gute Anbindung.
BESCHREIBUNG
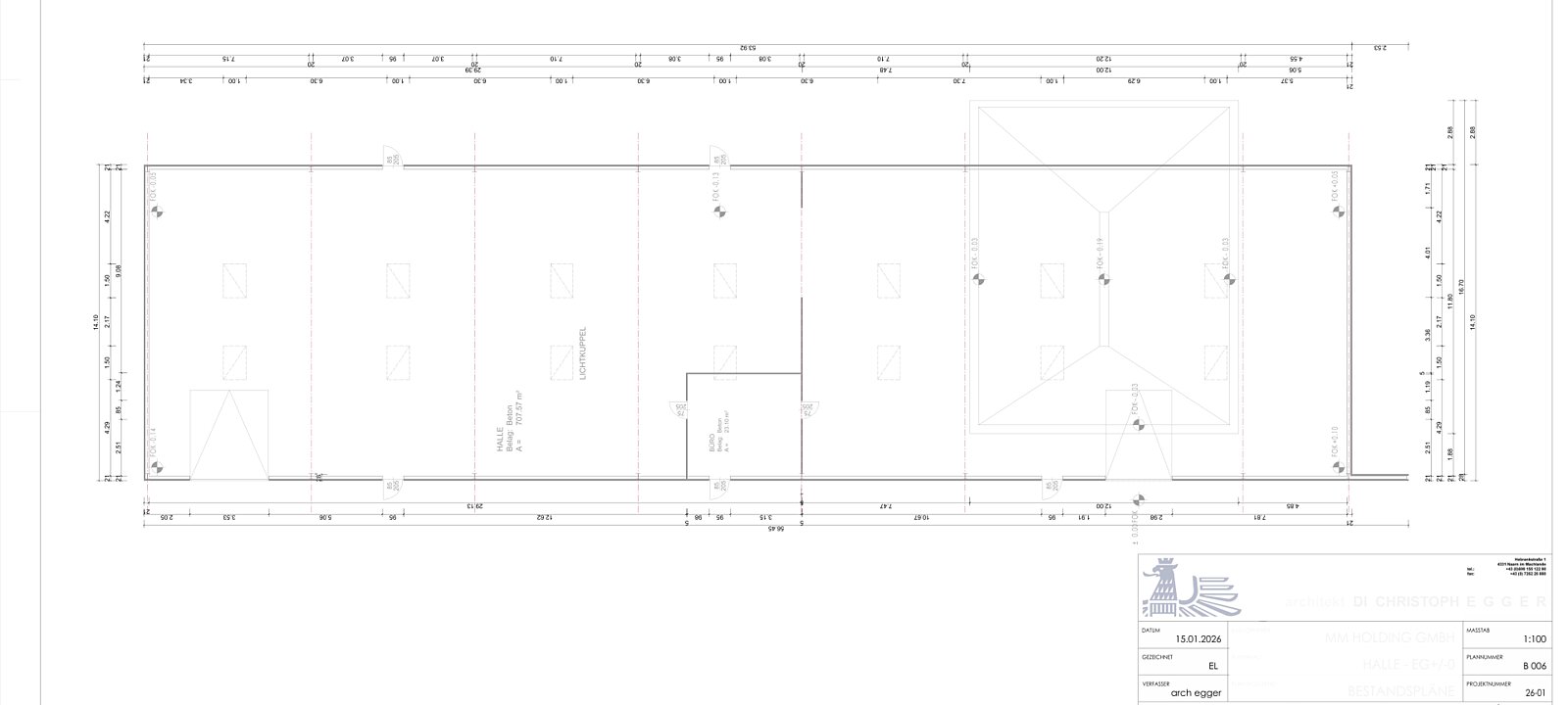
Diese Lagerhalle (Höhe 6,60 m) bietet Lagermöglichkeit für Ihre Ware auf 885 m2 Nutzfläche.
Im Zentrum der Halle befindet sich ein kleines Büro als Zentrale.
LKW Rolltore zur Anlieferung (Höhe 4,63 m)
Boden: teilweise Asphalt oder Nutzestrich
Vor der Halle ist genug Fläche zum Rangieren der LKW´s
Parkmöglichkeit in Absprache
KOSTEN
Miete monatlich Euro 3.982,50 + 20 % Ust
BK monatlich Euro 2.212,50 + 20 % Ust
Vereinbaren Sie gleich einen Besichtigungstermin, TEL: 0650/5411309, panholzer@remax-joy.at
Gemäß § 5, Abs. 3 Maklergesetz weisen wir daraufhin, dass wir als Doppelmakler tätig sind.
Bitte beachten Sie, dass wir aufgrund der Nachweispflicht gegenüber dem Eigentümer nur Anfragen mit vollständiger Angabe der Anschrift und Telefonnummer bearbeiten können.
Wir weisen darauf hin, dass alle Angaben nach bestem Wissen und Gewissen erstellt wurden.
Für Auskünfte und Angaben, die uns von Seiten der Eigentümer und Dritten zur Verfügung gestellt wurden, übernehmen wir keine Haftung.
Dieses Angebot ist unverbindlich und frei bleibend.
Zwischenverwertung, Irrtümer, Druckfehler und Änderungen vorbehalten.
Dieses Exposé ist eine Vorinformation, als Rechtsgrundlage gilt allein der abgeschlossene Kaufvertrag. §15 Makler Verordnung gilt als vereinbart.
| Angaben gemäß gesetzlichem Erfordernis: | |||
| Miete | € | 3982,5 | zzgl 20% USt. |
| Betriebskosten | € | 2212,5 | zzgl 20% USt. |
| Umsatzsteuer | € | 1239 | |
| ------------------------------------------------------------------ | |||
| Gesamtbetrag | € | 7434 | |
| ------------------------------------------------------------------ | |||
| Heizwärmebedarf: | 165.0 kWh/(m²a) | ||
| Klasse Heizwärmebedarf: | E | ||
| Faktor Gesamtenergieeffizienz: | 1.24 | ||
| Klasse Faktor Gesamtenergieeffizienz: | C | ||
| Flächenwidmung DORIS | externer Link | Öffnen |
| Google Maps | externer Link | Öffnen |
| documents_1777165414-0819.pdf | Download | |
| documents_1777165414-8746.pdf | Download | |
| documents_1777165415-6645.pdf | Download |


Als Standortagentur des Landes trägt Business Upper Austria maßgeblich zur Stärkung und Weiterentwicklung des Wirtschaftsstandorts Oberösterreich bei.
Business Upper Austria ist die erste Adresse für alle, die am Standort Oberösterreich investieren wollen. Die oberösterreichische Standortagentur entwickelt Betriebsgebiete, unterstützt bei der Standort- und Mitarbeitersuche und berät Unternehmen zu nationalen und internationalen Förderungen. Weitere Informationen zu den Leistungen von Business Upper Austria im Bereich Investorenservice finden Sie hier.
Oberösterreich ist ein attraktiver Standort für innovative Unternehmen. Business Upper Austria fördert die Innovationskraft und Innovationsstrategien mit einer breiten Palette an maßgeschneiderten Dienstleistungen. Weitere Informationen zu den Leistungen von Business Upper Austria im Bereich Innovationsförderung finden Sie hier.
Business Upper Austria knüpft das Netzwerk, das Sie für Ihren wirtschaftlichen Erfolg brauchen. Die oberösterreichische Standortagentur unterstützt Sie bei der Suche nach nationalen und internationalen Kooperationspartnern aus Wirtschaft und Forschung. Weitere Informationen zu den Leistungen von Business Upper Austria im Bereich Vernetzung finden Sie hier.
Unsere Leistungen für Ihren Erfolg
Die Wirtschaftskammer Oberösterreich bietet professionelle Informations- und Beratungsleistungen zur Unterstützung von Wachstum und Sicherheit der Betriebe an.
Mit juristischen Fakten aus dem Vertragsrecht, Vergabe- und Wettbewerbsrecht, Datenschutz sowie Infos zu E-Commerce, Gesellschafts- und Insolvenzrecht, Miete und Pacht, etc.
Auf dieser Seite finden Sie eine Übersicht zum Serviceangebot zum Thema Gründung und Übergabe. Das Gründerservice der Wirtschaftskammern bietet Unternehmensgründern, Betriebsnachfolgern und Franchise-Nehmern professionelle Unterstützung beim Start ins Unternehmertum.
Ihr Kontakt zu den branchenübergreifenden und überregionalen Arbeitsgemeinschaften und Plattformen der WKO, wie z.B. Junge Wirtschaft, Frau in der Wirtschaft, Ein-Personen-Unternehmen, Enterprise Europe Network, etc.
Infos zu den Themen Betriebsanlagen-Genehmigung, Betriebsanlagen-Coaching/-Rechtsvertretung, Arbeitnehmerschutz, Umwelt, Normen.
Jetzt alles unternehmen!
Teilen