












NEUBAU - SHOP - BIO - PARKPLÄTZE
QUICKFACTS
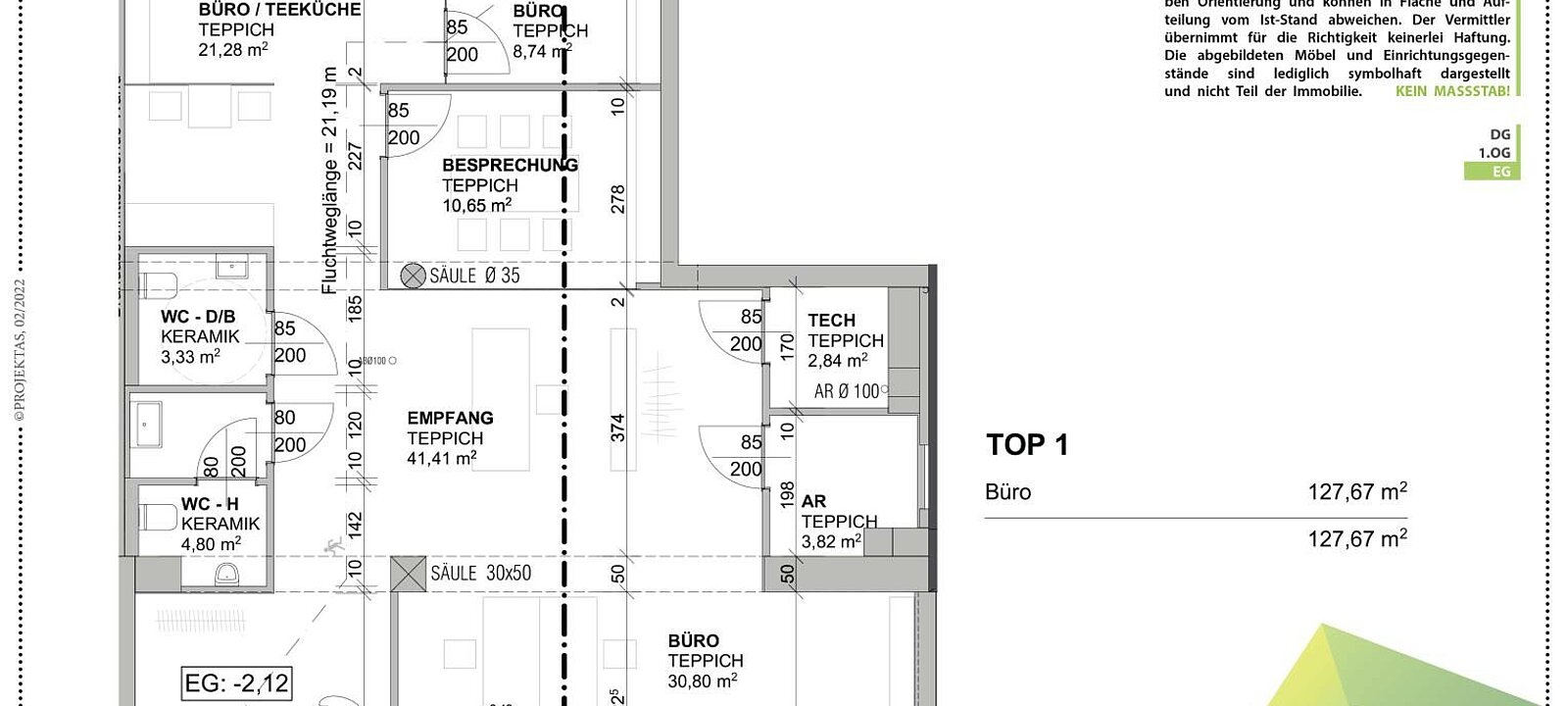
Nutzfläche gesamt: ca. 127,67
Raumaufteilung: nach Mieterwunsch
Stockwerk: EG
Parkplätze: bis zu 13 Parkplätze in Garage, 40+ Freistellplätze
WC Anlagen: getrennt
Nettomiete / m²: € 10,00
Bezugstermin: nach Vereinbarung
OBJEKTBESCHREIBUNG
Am Rittsteigerhof in Hellmonsödt wurde ein Zubau errichtet in welchem ab Juni 2022 Praxis- oder Büroflächen von ca. 127,67 m² bis zu ca. 771,47 m² angemietet werden können. Im Innenhof des Neubaues liegt eine attraktive Fläche mit ca. 127,67 m² welche sowohl als Geschäft, Schauraum oder auch Büro genutzt werden kann. Darüberliegend im 1. OG ist eine helle Bürofläche mit ca. 156,52 m² zzgl. einer Terrassenfläche von ca. 92,06 m² angeordnet. Diese beiden Flächen bestechen durch eine Raumhöhe von ca. 3,10m. Das ausgebaute Dachgeschoss mit einer Gesamtfläche von ca. 487,28 m² ist derzeit unterteilt in 2 Büroeinheiten mit ca. 153,59 m² und ca. 333,69 m². Der Innenausbau wird auf den zukünftigen Mieter angepasst und beinhaltet einen belagsfertigen Doppelboden, abgehängte Decken, Trockenbauzwischenwände und Sanitäranlagen. Im Gebäude befindet sich ein Glasfaseranschluß für eine hervorragende Internetverbindung. Selbstverständlich wurde das Gebäude mit einem modernen Personenlift ausgestattet. Die Mietflächen eignen sich sowohl für den konventionellen Bürobetrieb als auch als Praxen im Gesundheitsbereich. Besonders hervorzuheben ist die inspirierende, ruhige Lage des Rittsteigerhofes für Unternehmen die Ihren Mitarbeitern eine gesundes Arbeitsumfeld bieten wollen. Wandern oder Radfahren im Sommer und Langlaufen im Winter in der direkt angrenzenden Nordic Arena bieten Mitarbeiten sportlichen Ausgleich zum Büroalltag. Ausreichend Parkplätze in der Garage sowie Freistellplätze sind direkt am Objekt verfügbar.
LAGE & VERKEHRSANBINDUNG
Der Rittsteigerhof in Hellmonsödt liegt malerisch am sonnigen Waldrand im Ortsteil Oberaigen und ist mit dem Auto in nur wenigen Minuten vom Ortszentrum (3,5 km) erreichbar. Die Fahrzeit vom Hauptplatz Linz über die B 126 beträgt ca. 30 Minuten. Öffentliche Post-Busverbindungen sind in ca. 2 Km Entfernung. Der Loipeneinstieg zur Nordic Arena befindet sich unmittelbar neben dem Rittsteigerhof. Parkplätze sind am Objekt in großer Anzahl vorhanden. Garagenparkplätze können für € 58,00 netto / Monat angemietet werden.
AUSSTATTUNG
Zustand: Neubau
Boden: Doppelboden mit Teppichfliese oder Parkett nach Vereinbarung
Fenster: öffenbar
Sonnenschutz: vorhanden
Decke: abgehängt
Internetanschluß: Glasfaser
Heizung: Wärmepumpe
Klima: möglich
Teeküche: vorbereitet
Lift: vorhanden
KONDITIONEN (NETTO)
Miete: € 10,00 / m² / Monat
Betriebskosten: € 2,00 / m² / Monat
Heizkosten: nach Verbrauch
Wasser: nach Verbrauch
Strom: nach Verbrauch
Befristung: unbefristet, ab 4 Jahre
Kaution: 3 BMM
Provision: 3 BMM
Zögern Sie nicht uns bei etwaigen Rückfragen oder zur Vereinbarung eines unverbindlichen Besichtigungs- bzw. Beratungstermines zu kontaktieren. Unser Team steht Ihnen gerne zur Verfügung! Ihr Ansprechpartner: Herr Claudio Feistritzer (0664 / 12 88 000 bzw. 0732 / 77 0 88 5-22)
PS: Zahlreiche weitere Immobilien finden Sie auf unserer Homepage unter www.projektas.at
Hinweis: Wir verarbeiten personenbezogene Daten zu geschäftlichen Zwecken. Nähere Informationen finden Sie unter www.projektas.at
| Angaben gemäß gesetzlichem Erfordernis: | |||
| Miete | € | 1276,7 | zzgl 20% USt. |
| Betriebskosten | € | 255,34 | zzgl 20% USt. |
| Umsatzsteuer | € | 306,41 | |
| ------------------------------------------------------------------ | |||
| Gesamtbetrag | € | 1838,45 | |
| ------------------------------------------------------------------ | |||
| Heizwärmebedarf: | 97.2 kWh/(m²a) | ||
| Klasse Heizwärmebedarf: | C | ||
| Faktor Gesamtenergieeffizienz: | 0.69 | ||
| Klasse Faktor Gesamtenergieeffizienz: | A+ | ||
| Flächenwidmung DORIS | externer Link | Öffnen |
| Google Maps | externer Link | Öffnen |
| documents_1747358675-5208.pdf | Download | |
| documents_1747358676-1958.pdf | Download | |
| documents_1747358676-8822.pdf | Download | |
| documents_1747358677-6432.pdf | Download | |
| documents_1747358678-2887.pdf | Download |


Als Standortagentur des Landes trägt Business Upper Austria maßgeblich zur Stärkung und Weiterentwicklung des Wirtschaftsstandorts Oberösterreich bei.
Business Upper Austria ist die erste Adresse für alle, die am Standort Oberösterreich investieren wollen. Die oberösterreichische Standortagentur entwickelt Betriebsgebiete, unterstützt bei der Standort- und Mitarbeitersuche und berät Unternehmen zu nationalen und internationalen Förderungen. Weitere Informationen zu den Leistungen von Business Upper Austria im Bereich Investorenservice finden Sie hier.
Oberösterreich ist ein attraktiver Standort für innovative Unternehmen. Business Upper Austria fördert die Innovationskraft und Innovationsstrategien mit einer breiten Palette an maßgeschneiderten Dienstleistungen. Weitere Informationen zu den Leistungen von Business Upper Austria im Bereich Innovationsförderung finden Sie hier.
Business Upper Austria knüpft das Netzwerk, das Sie für Ihren wirtschaftlichen Erfolg brauchen. Die oberösterreichische Standortagentur unterstützt Sie bei der Suche nach nationalen und internationalen Kooperationspartnern aus Wirtschaft und Forschung. Weitere Informationen zu den Leistungen von Business Upper Austria im Bereich Vernetzung finden Sie hier.
Unsere Leistungen für Ihren Erfolg
Die Wirtschaftskammer Oberösterreich bietet professionelle Informations- und Beratungsleistungen zur Unterstützung von Wachstum und Sicherheit der Betriebe an.
Mit juristischen Fakten aus dem Vertragsrecht, Vergabe- und Wettbewerbsrecht, Datenschutz sowie Infos zu E-Commerce, Gesellschafts- und Insolvenzrecht, Miete und Pacht, etc.
Auf dieser Seite finden Sie eine Übersicht zum Serviceangebot zum Thema Gründung und Übergabe. Das Gründerservice der Wirtschaftskammern bietet Unternehmensgründern, Betriebsnachfolgern und Franchise-Nehmern professionelle Unterstützung beim Start ins Unternehmertum.
Ihr Kontakt zu den branchenübergreifenden und überregionalen Arbeitsgemeinschaften und Plattformen der WKO, wie z.B. Junge Wirtschaft, Frau in der Wirtschaft, Ein-Personen-Unternehmen, Enterprise Europe Network, etc.
Infos zu den Themen Betriebsanlagen-Genehmigung, Betriebsanlagen-Coaching/-Rechtsvertretung, Arbeitnehmerschutz, Umwelt, Normen.
Jetzt alles unternehmen!
Teilen