











KLIMA - LIFT - SEMINARRAUM - E-WALLBOXEN
QUICKFACTS
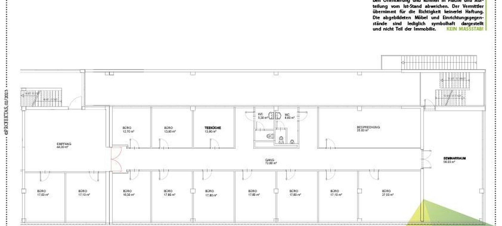
Nutzfläche gesamt: ca. 425 m²
Bürofläche: ca. 340 m²
Keller/Archiv: zusätzlich anmietbar
Raumaufteilung: Empfangsbereich, 11 Einzel- oder Doppelbüroräume, Teeküche, Besprechungsraum, Seminarraum, getrennte Sanitärräume
Stockwerk: 2. OG
Parkplätze: 3 Tiefgaragenparkplätze inkl. E-Wallbox zu je € 100,00 monatlich zzgl. 20% USt, 2 Außenparkplätze zu je € 50,00 monatlich zzgl. 20% USt, weitere Parkmöglichkeiten in der näheren Umgebung
WC Anlagen: 2 getrennt
Nettomiete / m²: € 11,00
Bezugstermin: ab sofort
OBJEKTBESCHREIBUNG
Diese attraktive Bürofläche im 2. Obergeschoß (mit Lift) des GMK Center Auhoffeld wurde erst vor 2 Jahren generalsaniert und bietet ab Juni 2023 auf 425 m² 11 klimatisierte Büroräume, einen großen Besprechungsraum mit ca. 35 m² sowie einen großzügigen Seminarraum mit ca. 56 m².
Selbstverständlich sind ein Empfangsbereich, vorbereitete Teeküche und getrennte Sanitärräume vorhanden. Die Ausstattung beinhaltet einen strapazierfähigen PVC Bodenbelag, abgehängte Decke mit Grundbeleuchtung, individuelle Klimatisierung jedes Raumes, Kabelkanäle mit Grundverkabelung.
Die Anbringung einer Außenwerbung an der Fassade sowie am Werbepylon des GMK Centers Auhoffeld ist gestattet. Zur gemeinschaftlichen Nutzung steht ein Terrassenbereich den Mietern zur Verfügung.
LAGE & VERKEHRSANBINDUNG
Das GMK Center Auhoffeld in der Freistädterstraße liegt direkt an der A7 Autobahnabfahrt Dornach. Bus- und Straßenbahnverbindungen sind nur wenige Gehminuten vom Standort entfernt. Nahversorger, Drogeriemärkte sowie zahlreiche Gastronomiebetriebe sind um das Gebäude angesiedelt.
Sportliche Mitarbeiter können den Bürostandort über das Radwegnetz erreichen. Ein HappyFit Fitnessstudio befindet sich im Gebäude gegenüber und weitere Sportmöglichkeiten gibt es im Naherholungsgebiet rund um den Pleschingersee.
AUSSTATTUNG
Zustand: gut
Boden: PVC
Fenster: öffenbar
Sonnenschutz: außen
Decke: abgehängt
Beleuchtung: vorhanden
Datenverkabelung: vorhanden
Zutrittssystem: vorhanden
Heizung: Fernwärme
Klima: individuell
Teeküche: vorbereitet
Lift: vorhanden
KONDITIONEN (NETTO)
Miete: € 11,00 / m² / Monat
Gesamtmiete: € 4.686,00 / Monat
Betriebskosten: € 1,92 / m² / Monat
Gesamtbetriebskosten: € 815,00 / Monat
Heizkosten: € 0,60 / m² / Monat
Gesamtheizkosten: € 255,00 / Monat
Strom: nach Verbrauch
Befristung: Mindestmietdauer 2 Jahre bis 10 Jahre
Kaution: 3 BMM
Provision: 3 BMM
Zögern Sie nicht uns bei etwaigen Rückfragen oder zur Vereinbarung eines unverbindlichen Besichtigungs- bzw. Beratungstermines zu kontaktieren. Unser Team steht Ihnen gerne zur Verfügung! Ihr Ansprechpartner: Herr Claudio Feistritzer (0664 / 12 88 000 bzw. 0732 / 77 0 88 5-22)
PS: Zahlreiche weitere Immobilien finden Sie auf unserer Homepage unter www.projektas.at
Hinweis: Wir verarbeiten personenbezogene Daten zu geschäftlichen Zwecken. Nähere Informationen finden Sie unter www.projektas.at
| Angaben gemäß gesetzlichem Erfordernis: | |||
| Miete | € | 4686 | zzgl 20% USt. |
| Betriebskosten | € | 815 | zzgl 20% USt. |
| Heizkosten | € | 255 | zzgl 20% USt. |
| Müll | € | 65,36 | zzgl 20% USt. |
| Umsatzsteuer | € | 1164,27 | |
| ------------------------------------------------------------------ | |||
| Gesamtbetrag | € | 6985,63 | |
| ------------------------------------------------------------------ | |||
| Heizwärmebedarf: | 56.8 kWh/(m²a) | ||
| Klasse Heizwärmebedarf: | C | ||
| Faktor Gesamtenergieeffizienz: | 0.85 | ||
| Klasse Faktor Gesamtenergieeffizienz: | A | ||
| Flächenwidmung DORIS | externer Link | Öffnen |
| Google Maps | externer Link | Öffnen |
| documents_1747358938-5986.pdf | Download | |
| documents_1747358939-3487.pdf | Download |


Als Standortagentur des Landes trägt Business Upper Austria maßgeblich zur Stärkung und Weiterentwicklung des Wirtschaftsstandorts Oberösterreich bei.
Business Upper Austria ist die erste Adresse für alle, die am Standort Oberösterreich investieren wollen. Die oberösterreichische Standortagentur entwickelt Betriebsgebiete, unterstützt bei der Standort- und Mitarbeitersuche und berät Unternehmen zu nationalen und internationalen Förderungen. Weitere Informationen zu den Leistungen von Business Upper Austria im Bereich Investorenservice finden Sie hier.
Oberösterreich ist ein attraktiver Standort für innovative Unternehmen. Business Upper Austria fördert die Innovationskraft und Innovationsstrategien mit einer breiten Palette an maßgeschneiderten Dienstleistungen. Weitere Informationen zu den Leistungen von Business Upper Austria im Bereich Innovationsförderung finden Sie hier.
Business Upper Austria knüpft das Netzwerk, das Sie für Ihren wirtschaftlichen Erfolg brauchen. Die oberösterreichische Standortagentur unterstützt Sie bei der Suche nach nationalen und internationalen Kooperationspartnern aus Wirtschaft und Forschung. Weitere Informationen zu den Leistungen von Business Upper Austria im Bereich Vernetzung finden Sie hier.
Unsere Leistungen für Ihren Erfolg
Die Wirtschaftskammer Oberösterreich bietet professionelle Informations- und Beratungsleistungen zur Unterstützung von Wachstum und Sicherheit der Betriebe an.
Mit juristischen Fakten aus dem Vertragsrecht, Vergabe- und Wettbewerbsrecht, Datenschutz sowie Infos zu E-Commerce, Gesellschafts- und Insolvenzrecht, Miete und Pacht, etc.
Auf dieser Seite finden Sie eine Übersicht zum Serviceangebot zum Thema Gründung und Übergabe. Das Gründerservice der Wirtschaftskammern bietet Unternehmensgründern, Betriebsnachfolgern und Franchise-Nehmern professionelle Unterstützung beim Start ins Unternehmertum.
Ihr Kontakt zu den branchenübergreifenden und überregionalen Arbeitsgemeinschaften und Plattformen der WKO, wie z.B. Junge Wirtschaft, Frau in der Wirtschaft, Ein-Personen-Unternehmen, Enterprise Europe Network, etc.
Infos zu den Themen Betriebsanlagen-Genehmigung, Betriebsanlagen-Coaching/-Rechtsvertretung, Arbeitnehmerschutz, Umwelt, Normen.
Jetzt alles unternehmen!
Teilen